Приказ Управления государственной охраны объектов культурного наследия Свердловской области от 05.10.2022 № 753
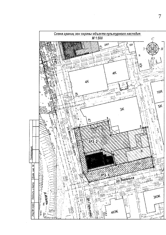
"Об установлении зон охраны объекта культурного наследия регионального значения "Дом купца П.Я. Сапожникова", расположенного по адресу: Свердловская область, г. Екатеринбург, ул. Горького, д. 49, и утверждении требований к градостроительным регламентам в границах данных зон"
"Об установлении зон охраны объекта культурного наследия регионального значения "Дом купца П.Я. Сапожникова", расположенного по адресу: Свердловская область, г. Екатеринбург, ул. Горького, д. 49, и утверждении требований к градостроительным регламентам в границах данных зон"
Номер опубликования: 6601202210070003
Дата опубликования:
07.10.2022
