Официальное опубликование правовых актов
ОФИЦИАЛЬНОЕ ОПУБЛИКОВАНИЕ
Приказ Управления государственной охраны объектов культурного наследия Свердловской области от 24.03.2022 № 157
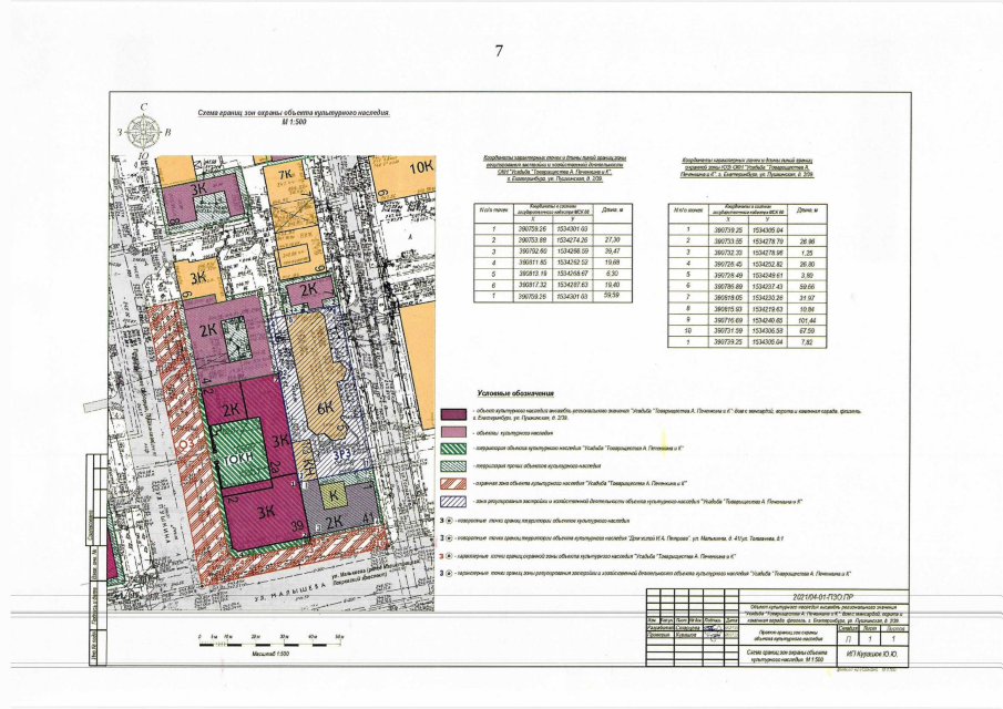
"Об установлении зон охраны объекта культурного наследия регионального значения "Усадьба "Товарищества А. Печенкина и К" и входящих в его состав объектов культурного наследия регионального значения "Дом с мансардой", "Ворота и каменная ограда" и "Флигель", расположенных по адресу: Свердловская область, г. Екатеринбург, ул. Пушкина, д. 2/ул. Малышева, д. 39, и утверждении требований к градостроительным регламентам в границах данных зон"
Номер опубликования: 6601202203250006
Дата опубликования: 25.03.2022
Страница №7 из 10:
Увеличить