Официальное опубликование правовых актов
ОФИЦИАЛЬНОЕ ОПУБЛИКОВАНИЕ
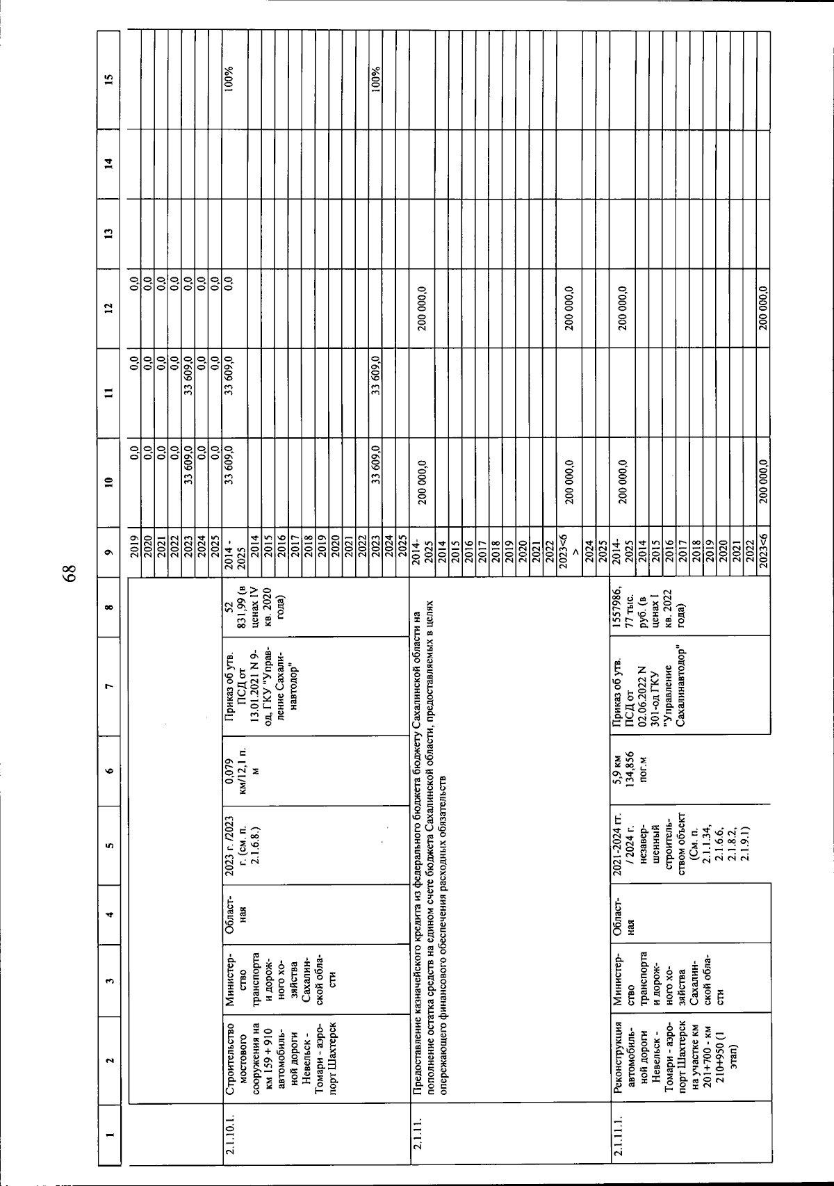
Постановление Правительства Сахалинской области от 23.08.2023 № 446
"О внесении изменений в Государственную программу Сахалинской области "Развитие транспортной инфраструктуры и дорожного хозяйства Сахалинской области"
Номер опубликования: 6500202308250004
Дата опубликования: 25.08.2023
Страница №117 из 184:
Увеличить