Официальное опубликование правовых актов
ОФИЦИАЛЬНОЕ ОПУБЛИКОВАНИЕ
Указ Губернатора Сахалинской области от 29.04.2022 № 23
"Об утверждении Схемы и Программы развития электроэнергетики Сахалинской области на 2022 - 2026 годы"
Номер опубликования: 6500202205060001
Дата опубликования: 06.05.2022
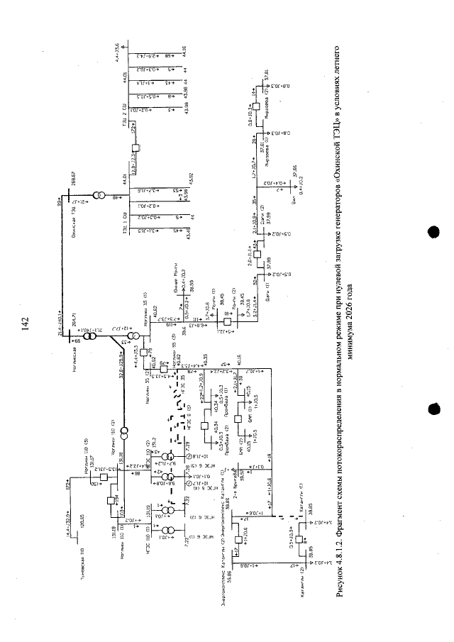
Страница №144 из 734:
Увеличить