Приказ Управления по охране объектов культурного наследия Саратовской области от 16.01.2020 № 01-04/15
"Об утверждении предмета охраны объекта культурного наследия регионального значения, расположенного по адресу: г. Саратов, ул. Вольская, 33"
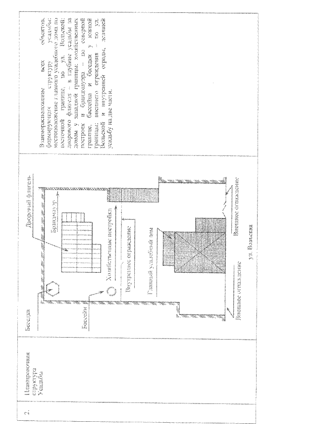
"Об утверждении предмета охраны объекта культурного наследия регионального значения, расположенного по адресу: г. Саратов, ул. Вольская, 33"
Номер опубликования: 6401202001230011
Дата опубликования:
23.01.2020
