Официальное опубликование правовых актов
ОФИЦИАЛЬНОЕ ОПУБЛИКОВАНИЕ
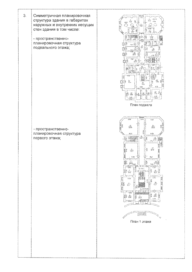
Приказ Управления по охране объектов культурного наследия Саратовской области от 02.12.2019 № 01-04/182
"Об утверждении предмета охраны объекта культурного наследия федерального значения, расположенного по адресу: г. Саратов, ул. им. А.Н. Радищева, д. 39"
Номер опубликования: 6401201912100003
Дата опубликования: 10.12.2019
Страница №4 из 27:
Увеличить