Официальное опубликование правовых актов
ОФИЦИАЛЬНОЕ ОПУБЛИКОВАНИЕ
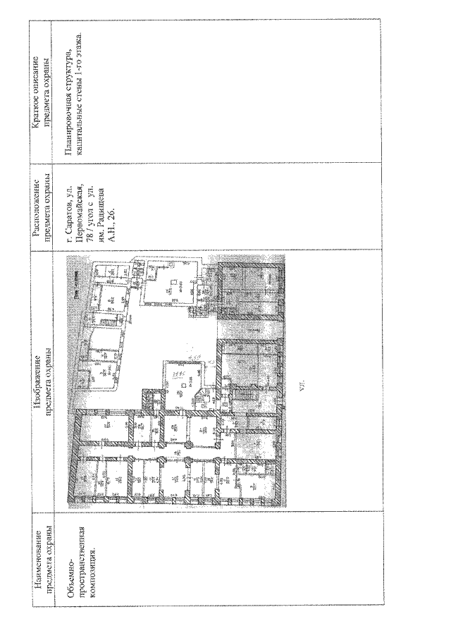
Приказ Управления по охране объектов культурного наследия Саратовской области от 18.11.2019 № 01-04/171
"Об утверждении предмета охраны объекта культурного наследия регионального значения, расположенного по адресу: г. Саратов, ул. Первомайская, 78/ул. Радищева, 26"
Номер опубликования: 6401201911250010
Дата опубликования: 25.11.2019
Страница №6 из 22:
Увеличить