Официальное опубликование правовых актов
ОФИЦИАЛЬНОЕ ОПУБЛИКОВАНИЕ
Постановление Правительства Саратовской области от 24.11.2023 № 1094-П
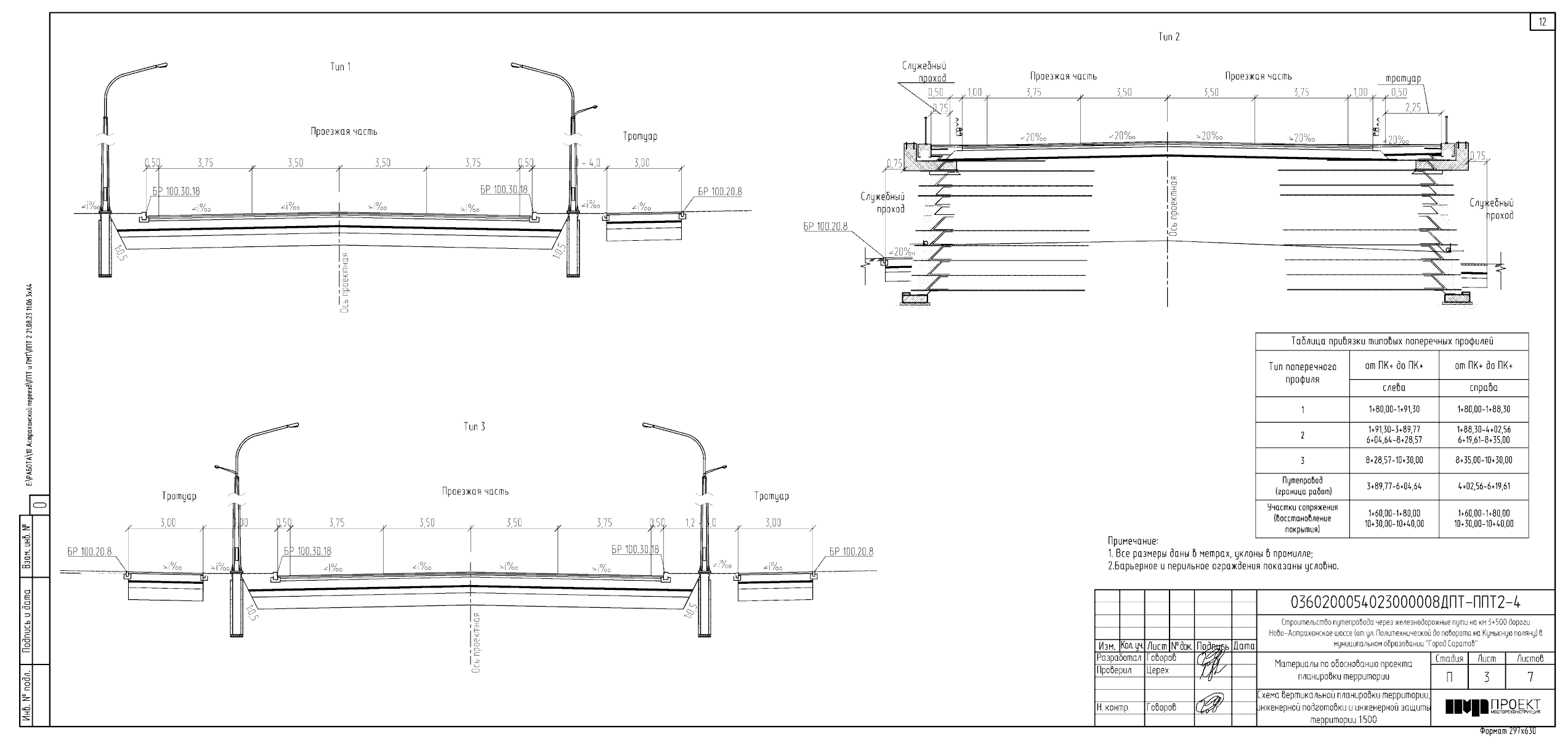
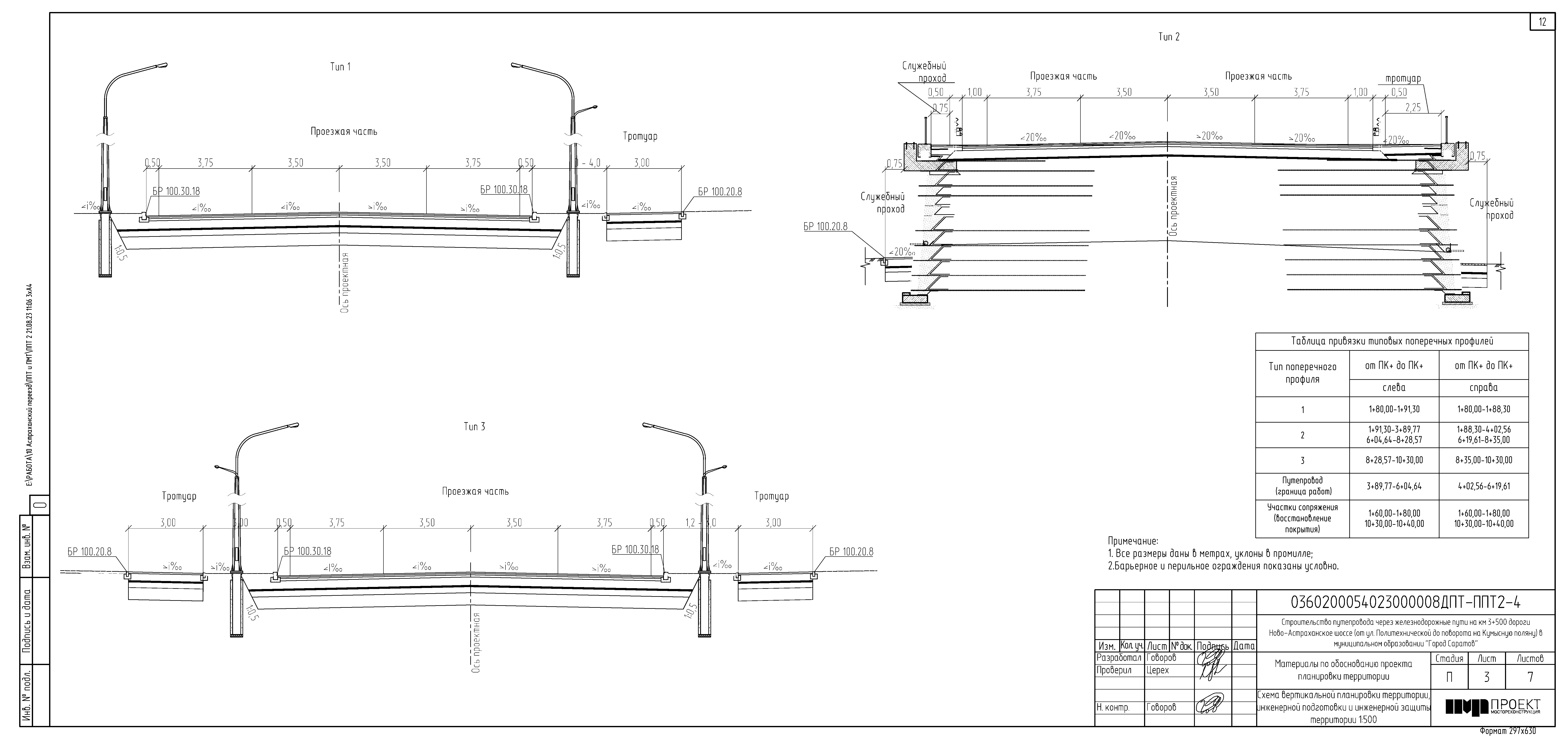
"Об утверждении документации по планировке территории по объекту "Строительство путепровода через железнодорожные пути на км 3+500 дороги Ново-Астраханское шоссе (от ул. Политехнической до поворота на Кумысную поляну)" в муниципальном образовании "Город Саратов"
Номер опубликования: 6400202311300003
Дата опубликования: 30.11.2023
Страница №48 из 520: