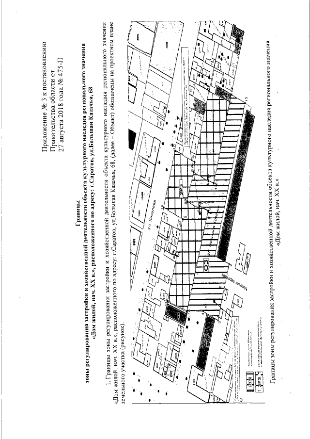
Постановление Правительства Саратовской области от 27.08.2018 № 475-П
"Об утверждении зон охраны объекта культурного наследия регионального значения "Дом жилой, нач. ХХ в.", расположенного по адресу: г.Саратов, ул.Большая Казачья, 68"
"Об утверждении зон охраны объекта культурного наследия регионального значения "Дом жилой, нач. ХХ в.", расположенного по адресу: г.Саратов, ул.Большая Казачья, 68"
Номер опубликования: 6400201808310008
Дата опубликования:
31.08.2018
