Официальное опубликование правовых актов
ОФИЦИАЛЬНОЕ ОПУБЛИКОВАНИЕ
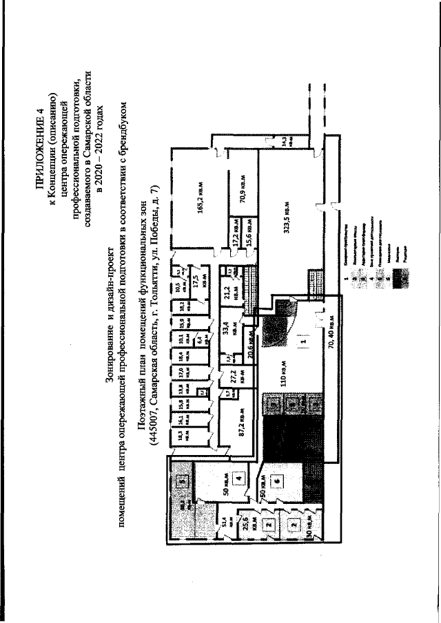
Распоряжение Правительства Самарской области от 04.07.2019 № 649-р
"О реализации в Самарской области в 2020 – 2022 годах мероприятий по разработке и распространению в системе среднего профессионального образования новых образовательных технологий и формы опережающей профессиональной подготовки в части создания центра опережающей профессиональной подготовки"
Номер опубликования: 6300201907050008
Дата опубликования: 05.07.2019
Страница №25 из 48:
Увеличить