Официальное опубликование правовых актов
ОФИЦИАЛЬНОЕ ОПУБЛИКОВАНИЕ
Постановление Главного управления архитектуры и градостроительства Рязанской области от 28.11.2019 № 393-п
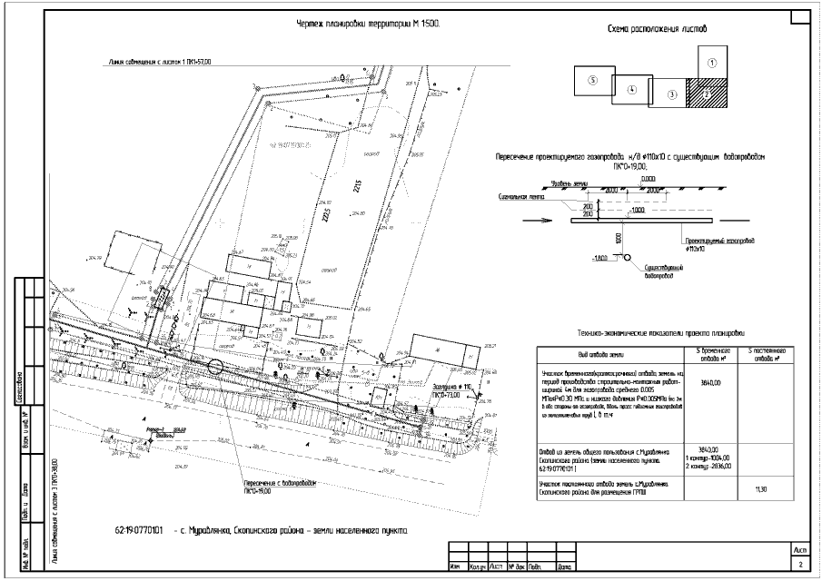
"Об утверждении проекта планировки территориии проекта межевания территории для линейного объекта:"Газификация улицы Михеевка в с. Муравлянка Скопинского района"
Номер опубликования: 6201201911290018
Дата опубликования: 29.11.2019
Страница №10 из 20:
Увеличить