Приказ Комитета по охране объектов культурного наследия Псковской области от 15.12.2021 № 735
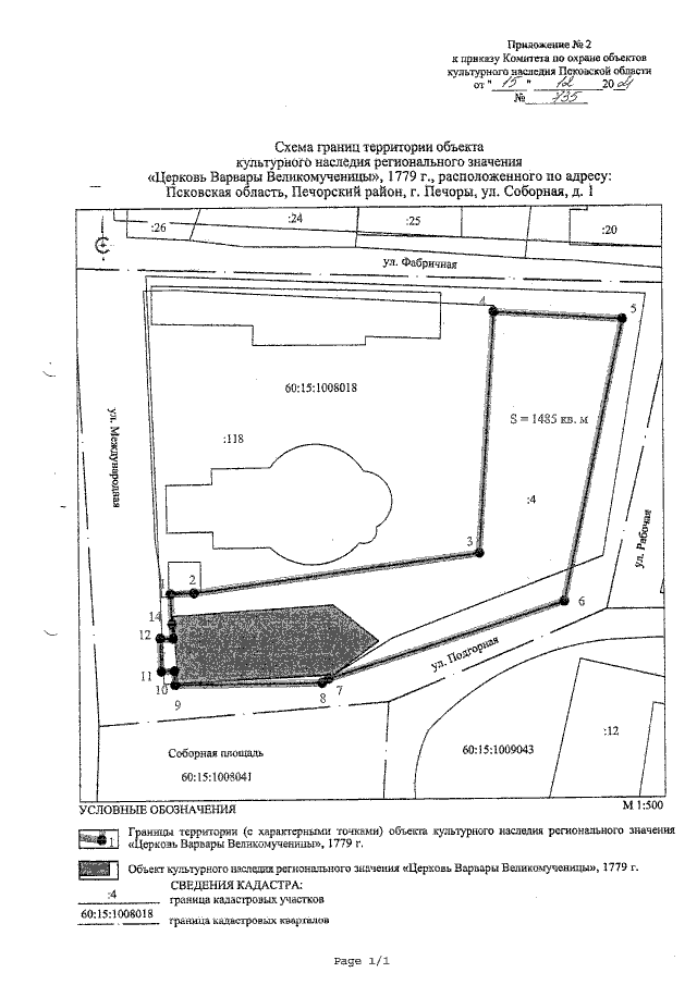
"Об утверждении границы территории объекта культурного наследия регионального значения "Церковь Варвары Великомученицы", 1779 г., расположенного по адресу: Псковская область, Печорский район, г. Печоры, ул. Соборная, д. 1"
"Об утверждении границы территории объекта культурного наследия регионального значения "Церковь Варвары Великомученицы", 1779 г., расположенного по адресу: Псковская область, Печорский район, г. Печоры, ул. Соборная, д. 1"
Номер опубликования: 6001202112170002
Дата опубликования:
17.12.2021
