Официальное опубликование правовых актов
ОФИЦИАЛЬНОЕ ОПУБЛИКОВАНИЕ
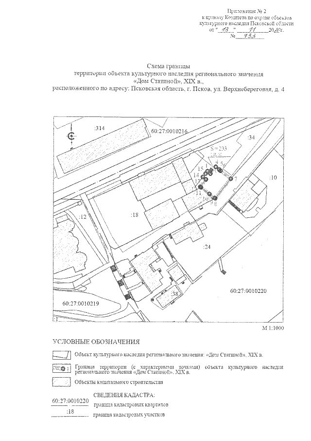
Приказ Комитета по охране объектов культурного наследия Псковской области от 13.11.2020 № 733
"Об утверждении границы территории объекта культурного наследия регионального значения "Дом Статиной", XIX в., расположенного по адресу: Псковская область, г. Псков, ул. Верхнебереговая, д. 4"
Номер опубликования: 6001202011190004
Дата опубликования: 19.11.2020
Страница №5 из 6:
Увеличить