Официальное опубликование правовых актов
ОФИЦИАЛЬНОЕ ОПУБЛИКОВАНИЕ
Постановление Правительства Пермского края от 10.03.2021 № 136-п
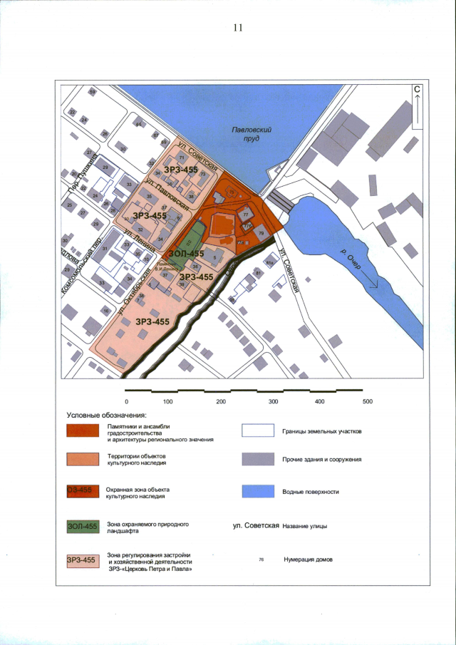
"Об утверждении границ зоны охраны объекта культурного наследия регионального значения – памятника "Церковь Петра и Павла", расположенного по адресу: Пермский край, Очерский городской округ, р.п. Павловский, ул. Октябрьская, д. 3, а также режимов использования земель, земельных участков и требований к градостроительным регламентам в границах данной зоны"
Номер опубликования: 5900202103110013
Дата опубликования: 11.03.2021
Страница №13 из 13:
Увеличить