Официальное опубликование правовых актов
ОФИЦИАЛЬНОЕ ОПУБЛИКОВАНИЕ
Приказ Министерства градостроительства и архитектуры Пензенской области от 14.08.2024 № 23-318
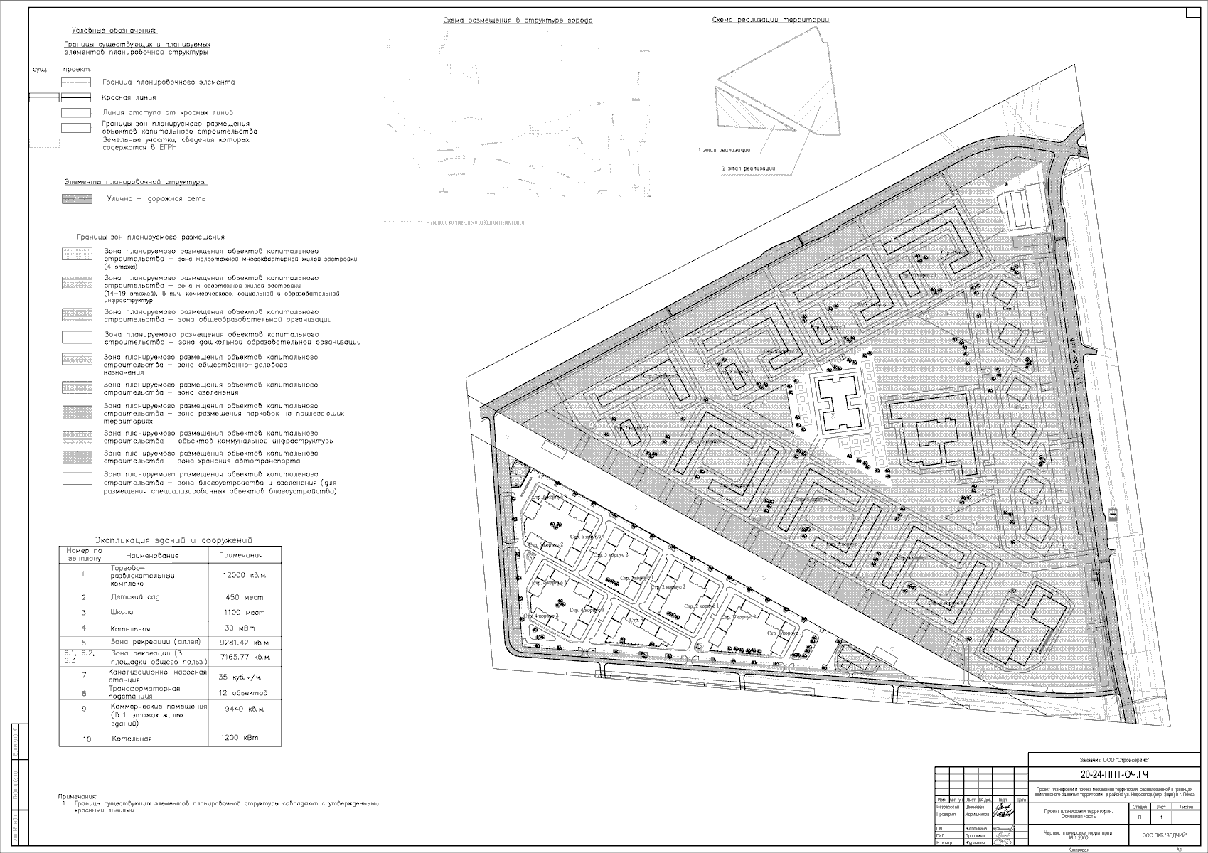
"Об утверждении проекта планировки и проекта межевания территории, расположенной в границах комплексного развития территории, в районе ул. Новоселов (мкр. Заря) в г. Пенза"
(Зарегистрирован 14.08.2024 № 23-318)
Номер опубликования: 5801202408140001
Дата опубликования: 14.08.2024
Страница №25 из 52: