Официальное опубликование правовых актов
ОФИЦИАЛЬНОЕ ОПУБЛИКОВАНИЕ
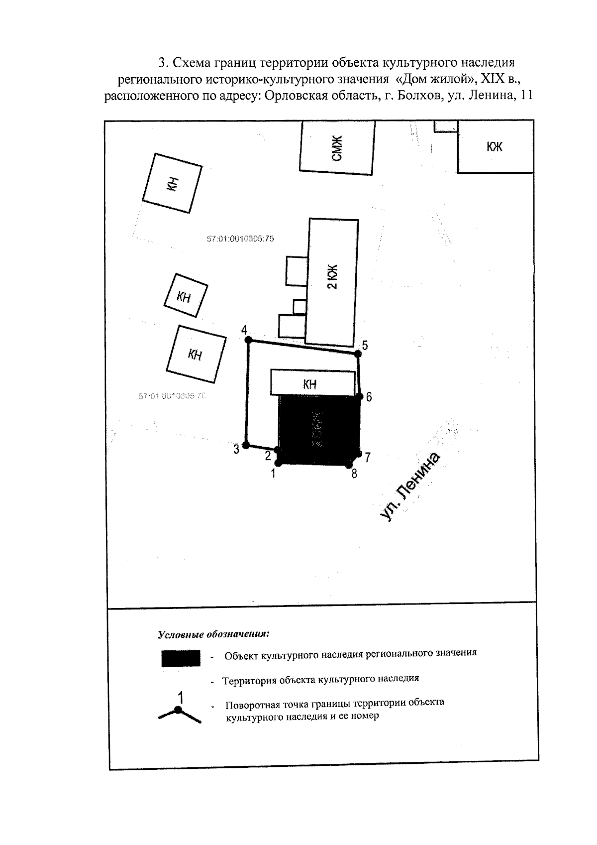
Приказ Управления по государственной охране объектов культурного наследия Орловской области от 13.11.2025 № 233
"Об утверждении границ территории и правового режима использования территории объекта культурного наследия регионального историко-культурного значения "Дом жилой", XIX в., расположенного по адресу: Орловская область, г. Болхов, ул. Ленина, 11"
(Зарегистрирован 14.11.2025 № 548/2025)
Номер опубликования: 5701202511180014
Дата опубликования: 18.11.2025
Страница №7 из 7:
Увеличить