Официальное опубликование правовых актов
ОФИЦИАЛЬНОЕ ОПУБЛИКОВАНИЕ
Приказ Управления по государственной охране объектов культурного наследия Орловской области от 23.10.2024 № 199
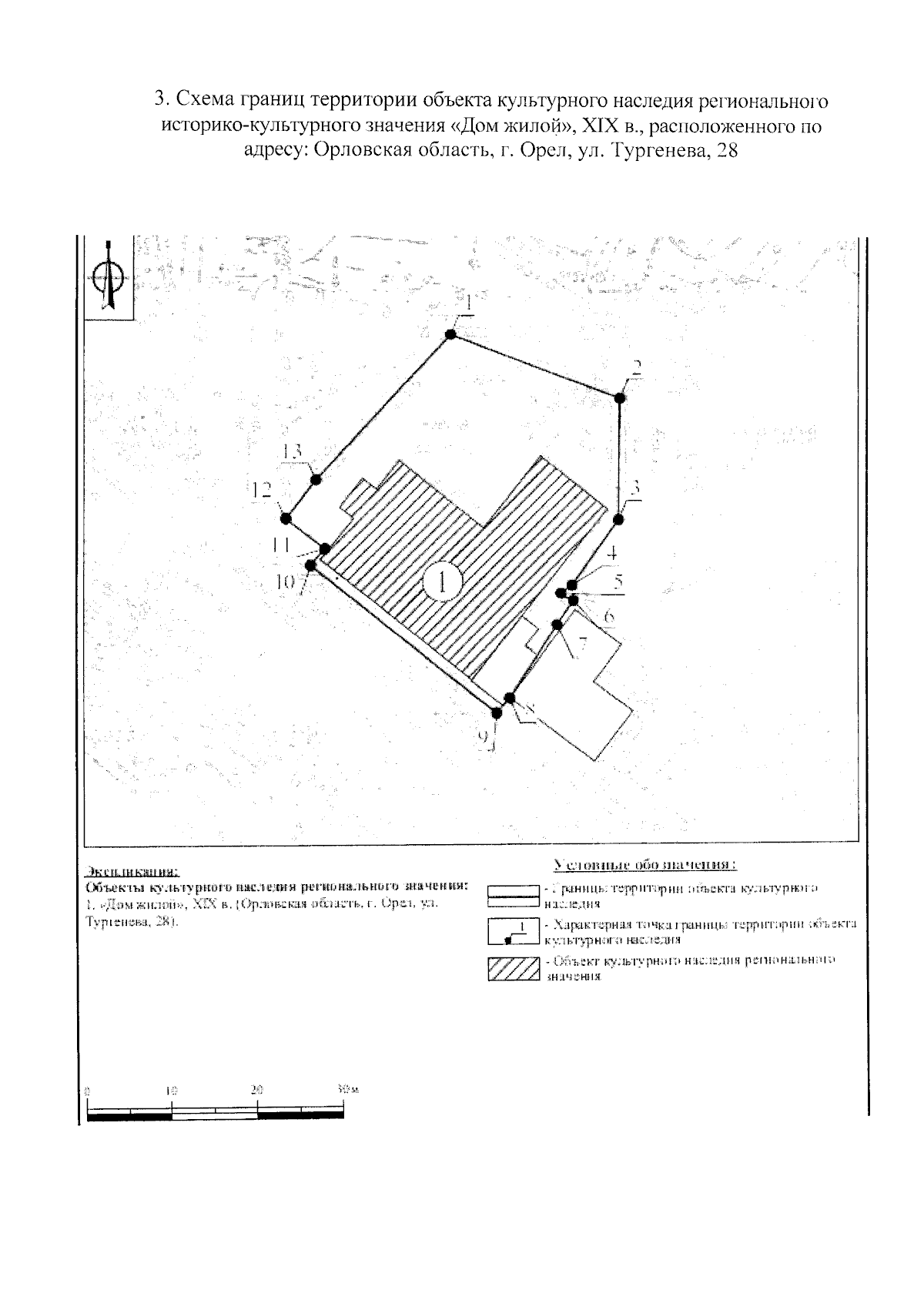
"Об утверждении границ территории и правового режима использования территории объекта культурного наследия регионального историко-культурного значения "Дом жилой", XIX в., расположенного по адресу: Орловская область, г. Орел, ул. Тургенева, 28"
(Зарегистрирован 25.10.2024 № 561/2024)
Номер опубликования: 5701202410290003
Дата опубликования: 29.10.2024
Страница №7 из 7:
Увеличить