Официальное опубликование правовых актов
ОФИЦИАЛЬНОЕ ОПУБЛИКОВАНИЕ
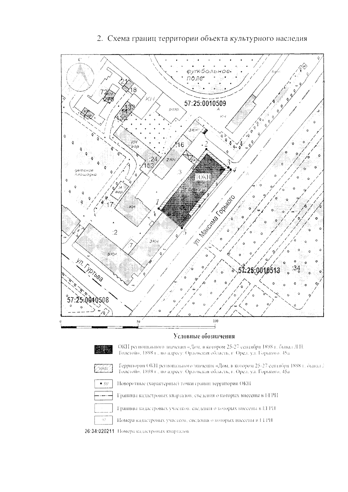
Приказ Управления по государственной охране объектов культурного наследия Орловской области от 27.11.2023 № 309
"Об утверждении границ территории и правового режима использования территории объекта культурного наследия регионального историко-культурного значения "Дом, в котором 25-27 сентября 1898 г. бывал Л.Н. Толстой", 1898 г., расположенного по адресу: Орловская область, г. Орел, ул. Горького, 45а"
(Зарегистрирован 29.11.2023 № 632/2023)
Номер опубликования: 5701202312010004
Дата опубликования: 01.12.2023
Страница №5 из 7:
Увеличить