Официальное опубликование правовых актов
ОФИЦИАЛЬНОЕ ОПУБЛИКОВАНИЕ
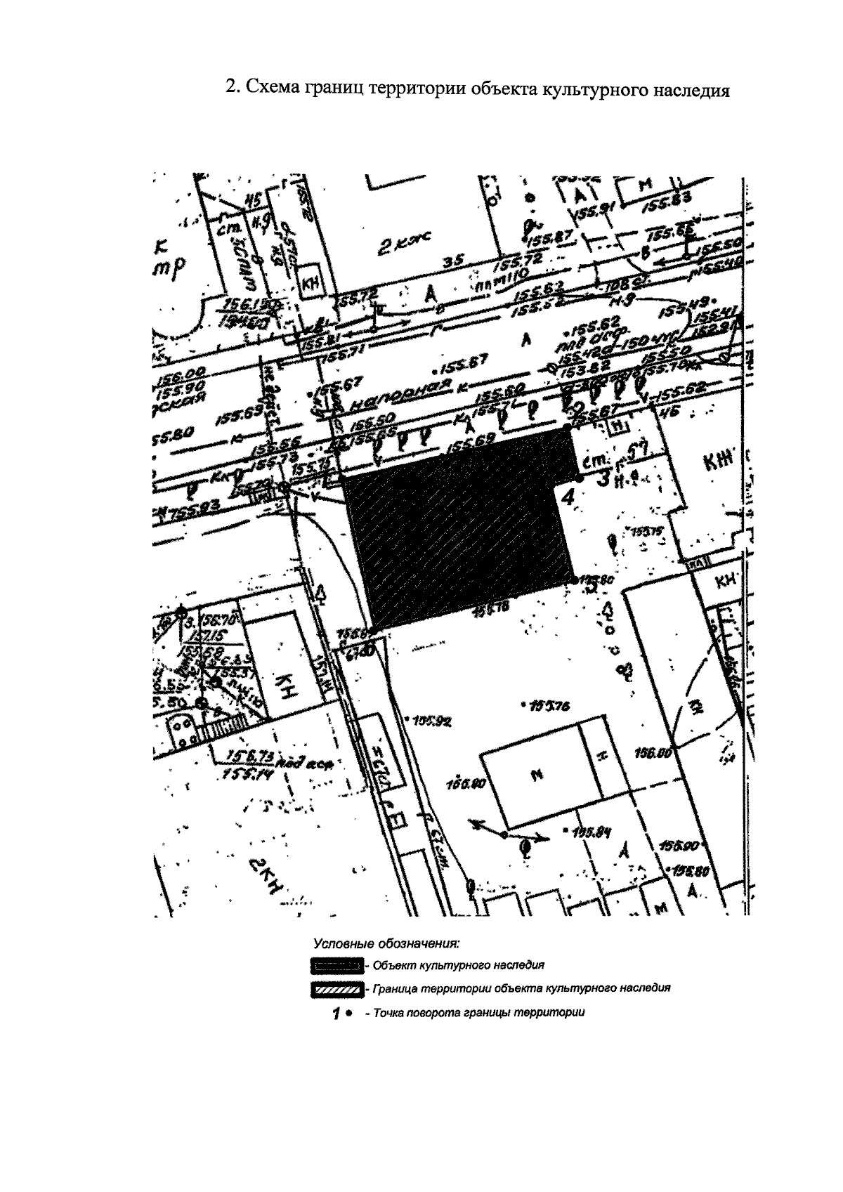
Приказ Управления по государственной охране объектов культурного наследия Орловской области от 26.10.2023 № 255
"Об утверждении границ территории и правового режима использования территории объекта культурного наследия регионального историко-культурного значения "Дом жилой", XIX в., расположенного по адресу: Орловская область, г. Орел, ул. 1-я Посадская, д. 44"
(Зарегистрирован 30.10.2023 № 544/2023)
Номер опубликования: 5701202311020006
Дата опубликования: 02.11.2023
Страница №8 из 8:
Увеличить