Официальное опубликование правовых актов
ОФИЦИАЛЬНОЕ ОПУБЛИКОВАНИЕ
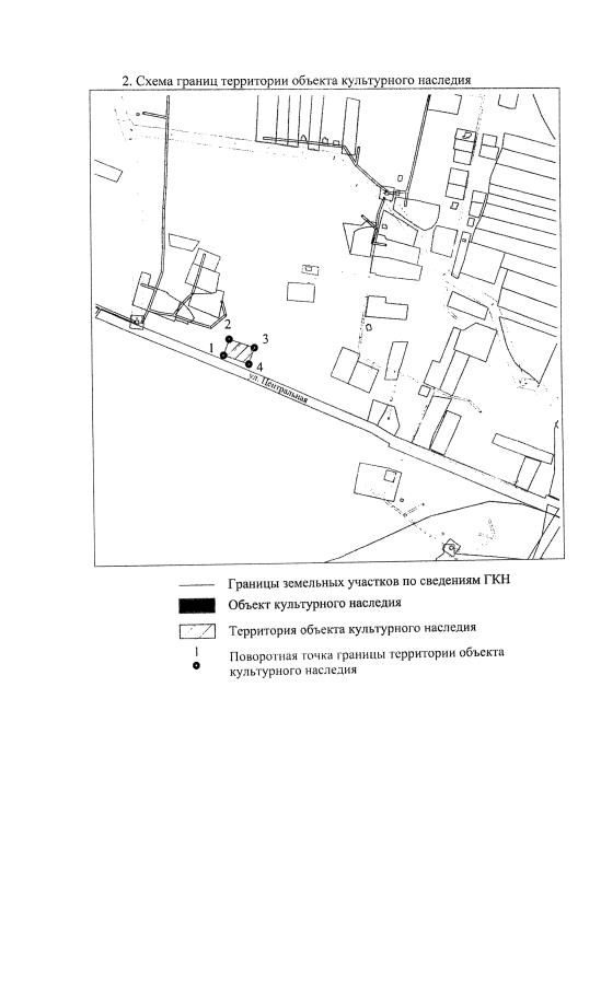
Приказ Управления по государственной охране объектов культурного наследия Орловской области от 22.02.2023 № 29
"Об утверждении границ территории и правового режима использования территории объекта культурного наследия регионального историко-культурного значения "Жилой дом", конец XVIII в., расположенного по адресу: Орловская область, Новосильский район, Голунского с/п, с. Голунь"
(Зарегистрирован 02.03.2023 № 93/2023)
Номер опубликования: 5701202303060003
Дата опубликования: 06.03.2023
Страница №5 из 7:
Увеличить