Официальное опубликование правовых актов
ОФИЦИАЛЬНОЕ ОПУБЛИКОВАНИЕ
Постановление Правительства Орловской области от 27.01.2023 № 66
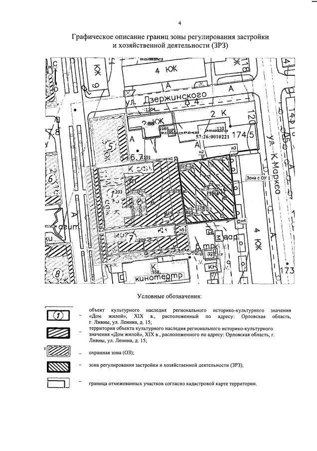
"Об установлении зон охраны объекта культурного наследия регионального историко-культурного значения "Дом жилой", XIX в., расположенного по адресу: Орловская область, г. Ливны, ул. Ленина, д. 15"
Номер опубликования: 5700202301300004
Дата опубликования: 30.01.2023
Страница №6 из 11:
Увеличить