Официальное опубликование правовых актов
ОФИЦИАЛЬНОЕ ОПУБЛИКОВАНИЕ
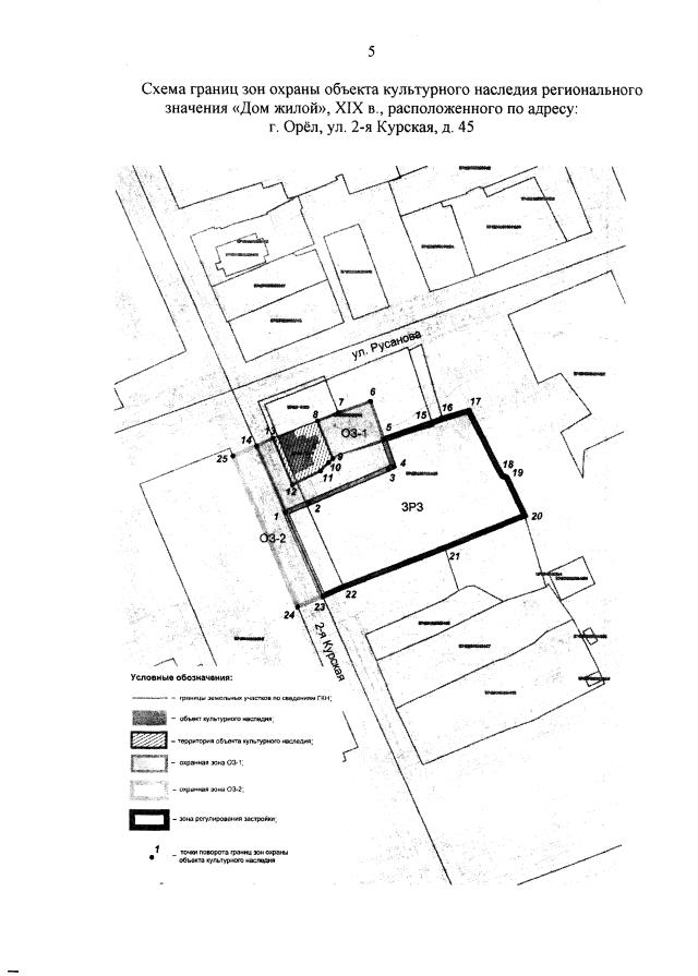
Постановление Правительства Орловской области от 30.04.2020 № 277
"Об установлении зон охраны объектов культурного наследия"
Номер опубликования: 5700202004300018
Дата опубликования: 30.04.2020
Страница №7 из 19:
Увеличить