Официальное опубликование правовых актов
ОФИЦИАЛЬНОЕ ОПУБЛИКОВАНИЕ
Приказ Инспекции государственной охраны объектов культурного наследия Оренбургской области от 17.11.2025 № 01-33-158
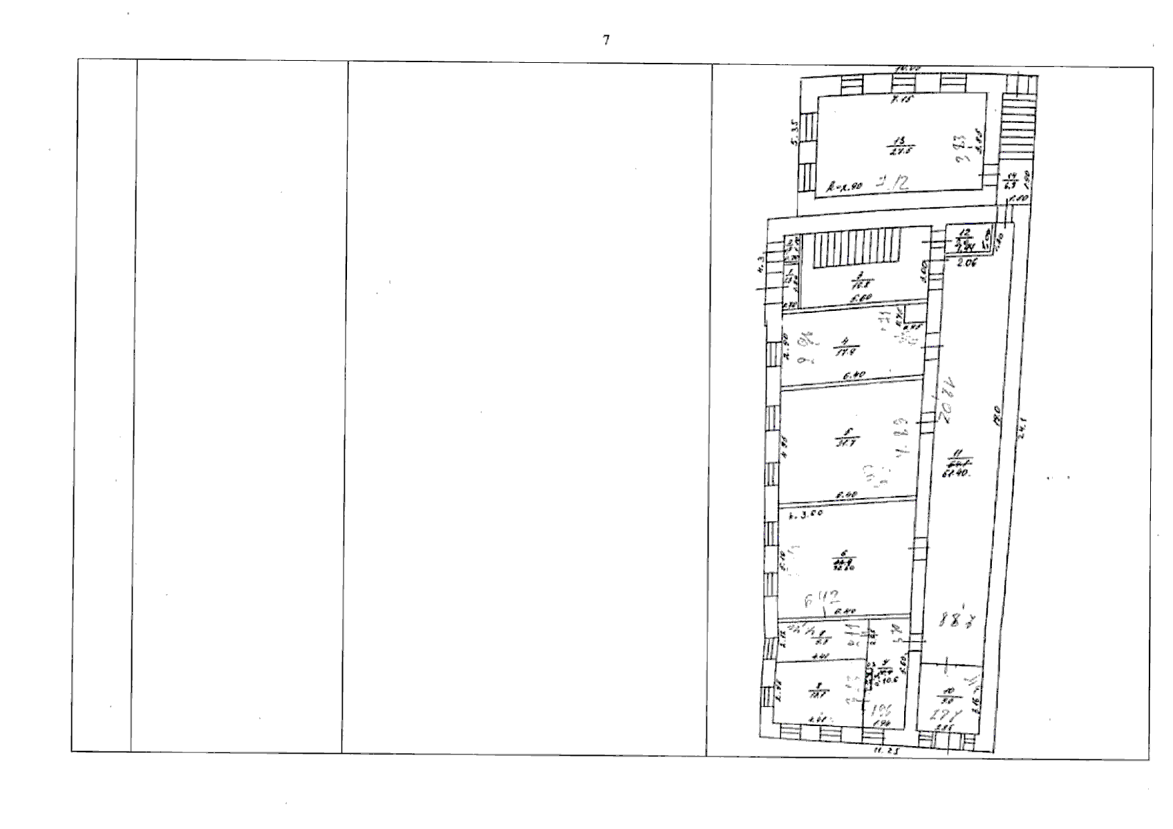
"О включении выявленного объекта культурного наследия в единый государственный реестр объектов культурного наследия (памятников истории и культуры) народов Российской Федерации в качестве объекта культурного наследия регионального значения (вид – ансамбль) "Медресе Второй соборной (Караван-Сарайской) мечети Оренбурга", 1910 год (Оренбургская область, город Оренбург, улица Постникова, дом 26, Литеры ЕБ, Литеры Е1Е2), об утверждении предмета охраны, границ и режима использования территории объекта культурного наследия"
(Зарегистрирован 17.11.2025 № 0150/2025/22)
Номер опубликования: 5601202511190006
Дата опубликования: 19.11.2025
Страница №7 из 22:
Увеличить