Официальное опубликование правовых актов
ОФИЦИАЛЬНОЕ ОПУБЛИКОВАНИЕ
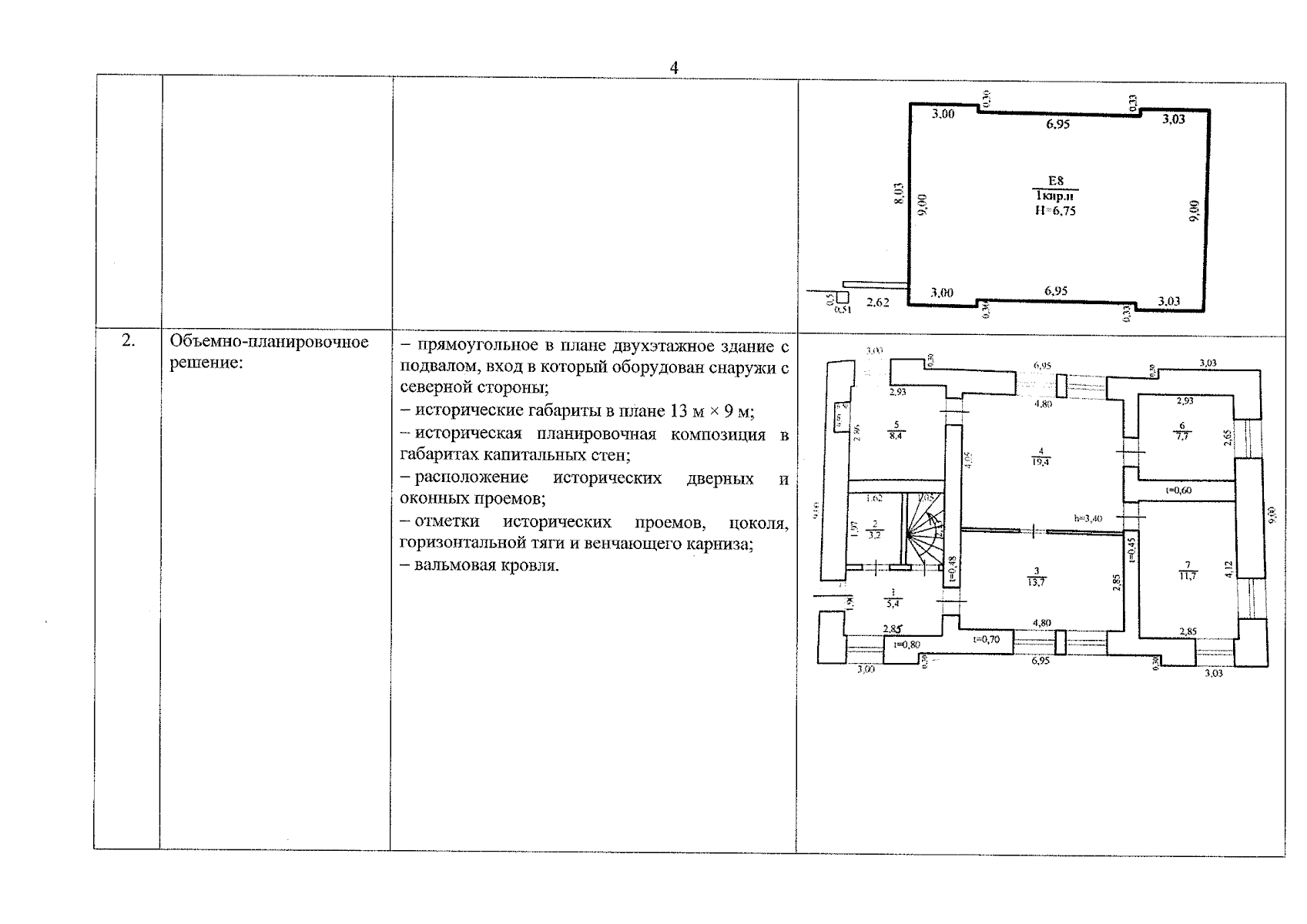
Приказ Инспекции государственной охраны объектов культурного наследия Оренбургской области от 15.11.2023 № 01-08-694
"О включении выявленного объекта культурного наследия в единый государственный реестр объектов культурного наследия (памятников истории и культуры) народов Российской Федерации в качестве объекта культурного наследия регионального значения (вид – памятник) "Здание, в котором в 1895-1918 годах осуществляла свою деятельность Оренбургская ученая архивная комиссия", 1870-1880-е годы, (Оренбургская область, г. Оренбург, ул. Набережная, 29, Литера Е8), об утверждении предмета охраны, границ и режима использования территории объекта культурного наследия"
(Зарегистрирован 15.11.2023 № 0450/2023/22)
Номер опубликования: 5601202311170009
Дата опубликования: 17.11.2023
Страница №4 из 22:
Увеличить