Официальное опубликование правовых актов
ОФИЦИАЛЬНОЕ ОПУБЛИКОВАНИЕ
Распоряжение Министерства архитектуры и пространственно-градостроительного развития Оренбургской области от 03.10.2023 № 14-р
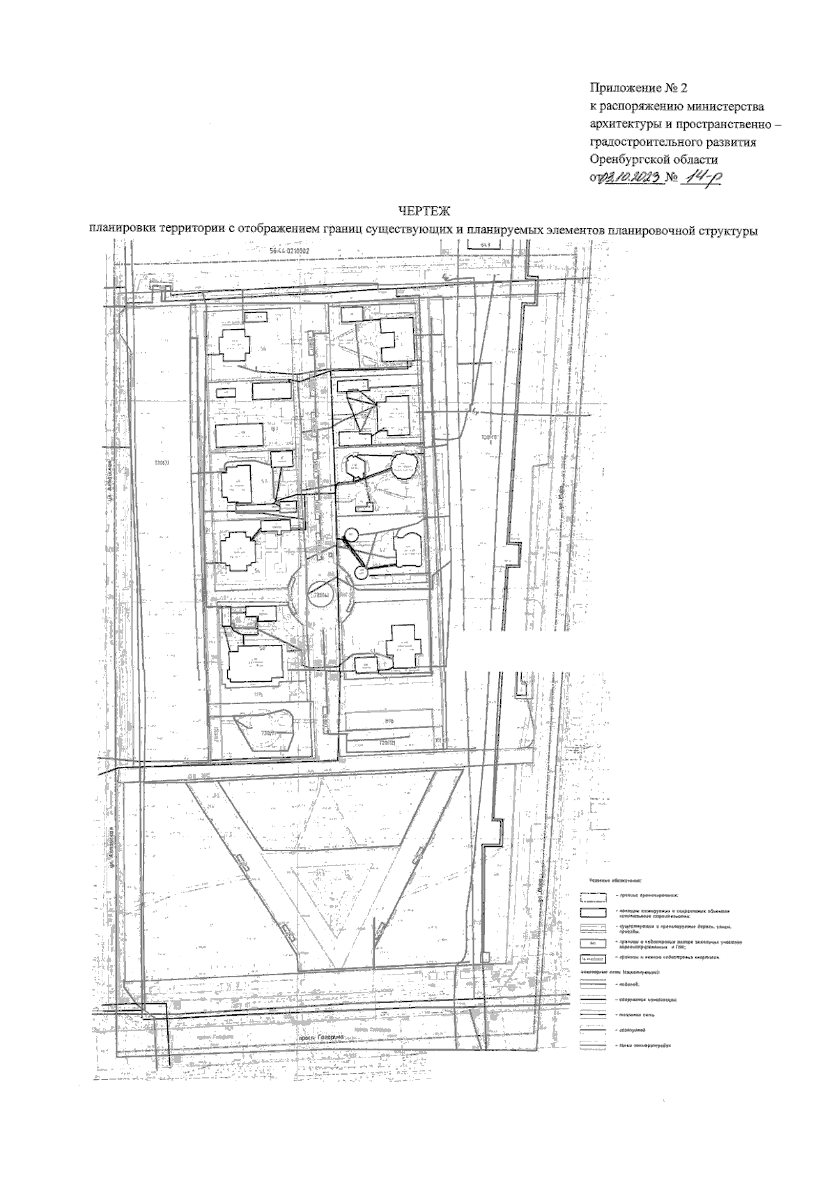
"Об утверждении проекта планировки и проекта межевания территории, ограниченной ул. Алтайская, проспектом Гагарина, ул. Мира и земельным участком с кадастровым номером 56:44:0210002:643, площадью - 11,34 га"
(Зарегистрирован 05.10.2023 № 0037/2023/02)
Номер опубликования: 5601202310090001
Дата опубликования: 09.10.2023
Страница №6 из 29:
Увеличить