Официальное опубликование правовых актов
ОФИЦИАЛЬНОЕ ОПУБЛИКОВАНИЕ
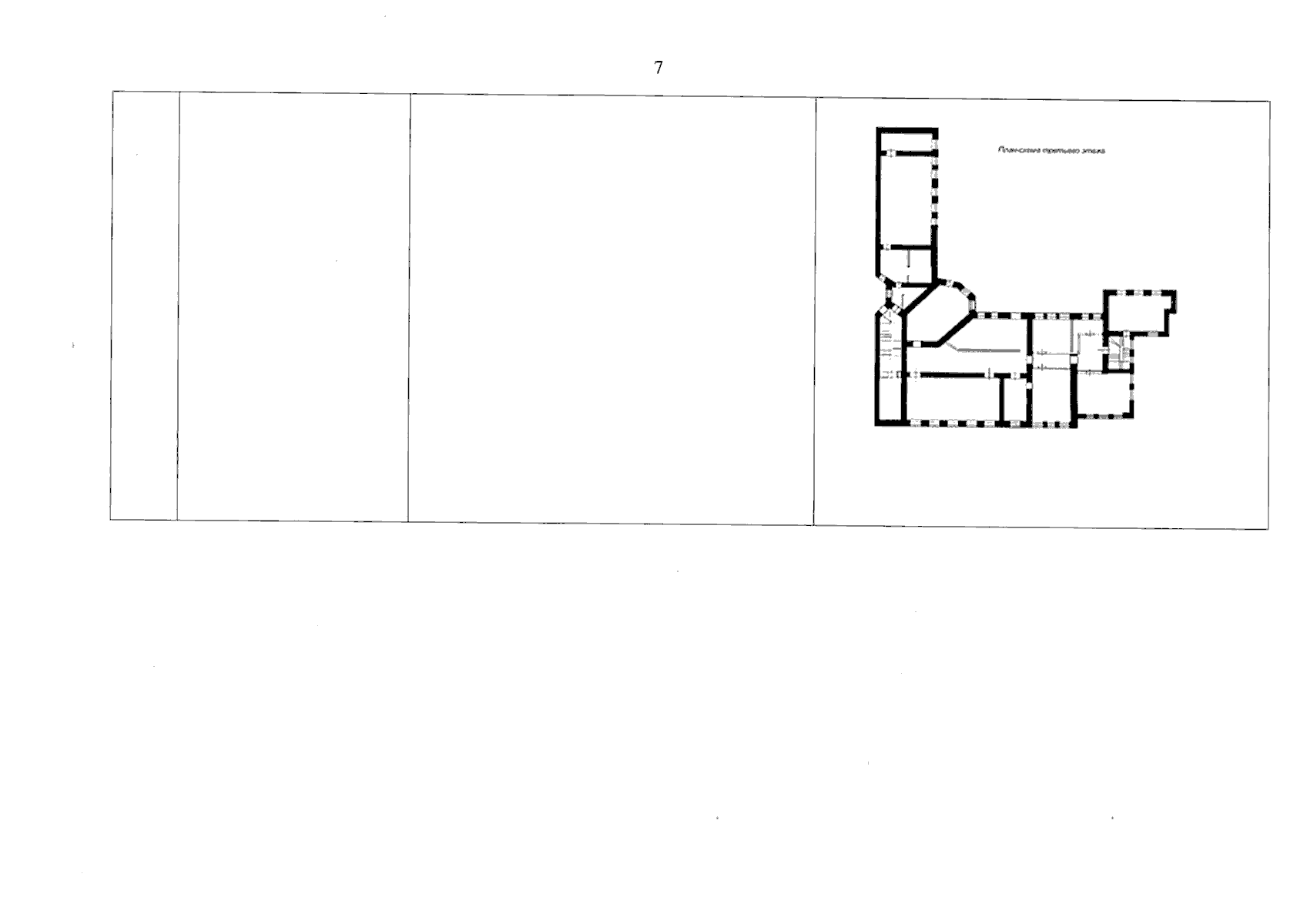
Приказ Инспекции государственной охраны объектов культурного наследия Оренбургской области от 18.09.2023 № 01-08-525
"Об утверждении предмета охраны объекта культурного наследия регионального значения (вид – памятник) "Городская усадьба Е.И. Иванова" (Оренбургская обл., г. Оренбург, проезд Коммунаров, 57)"
(Зарегистрирован 18.09.2023 № 0333/2023/22)
Номер опубликования: 5601202309210021
Дата опубликования: 21.09.2023
Страница №7 из 10:
Увеличить