Официальное опубликование правовых актов
ОФИЦИАЛЬНОЕ ОПУБЛИКОВАНИЕ
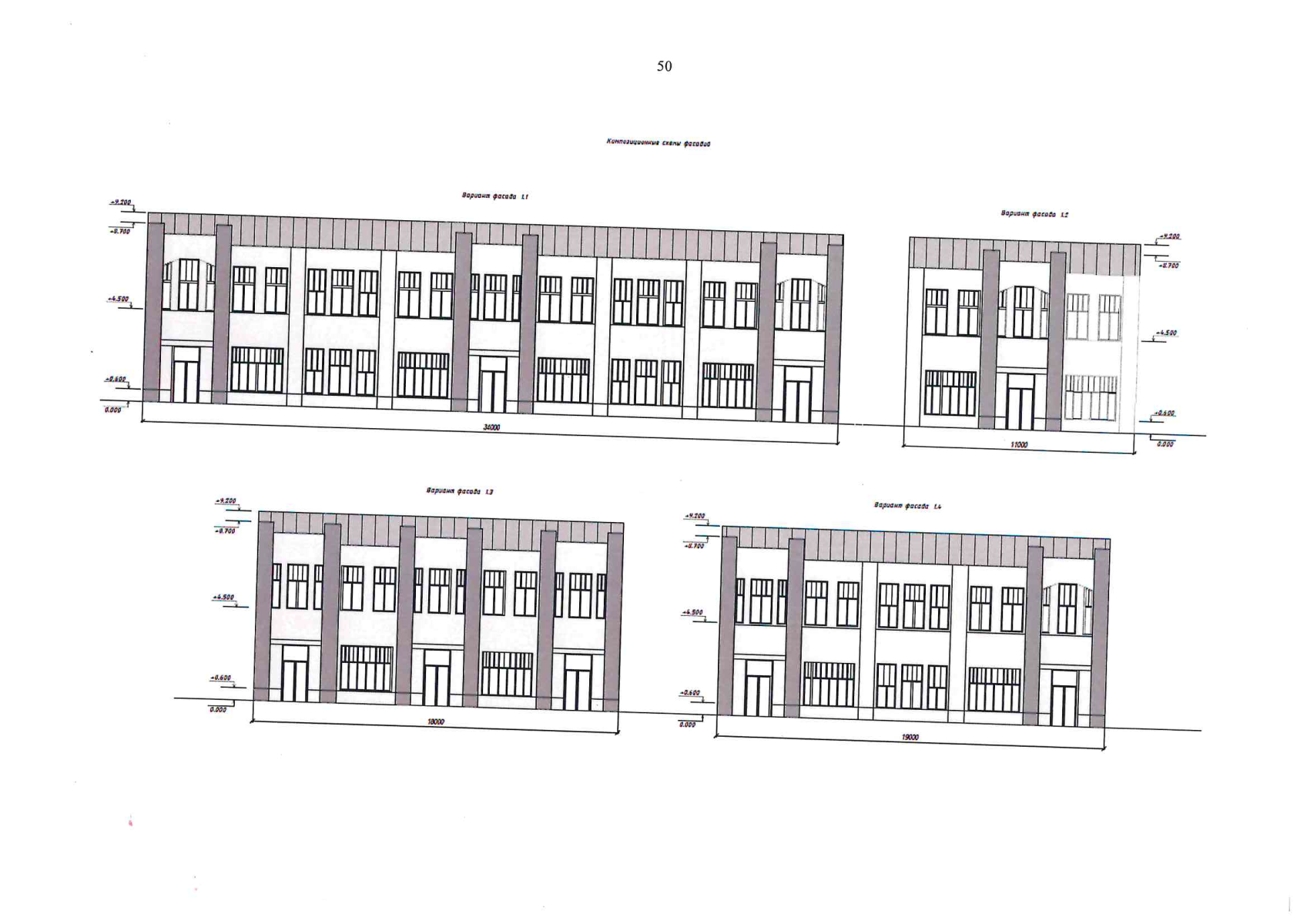
Приказ Инспекции государственной охраны объектов культурного наследия Оренбургской области от 05.09.2023 № 01-08-492
"Об утверждении типовых архитектурных решений объектов капитального строительства на территории исторического поселения регионального значения город Бузулук Оренбургской области"
Номер опубликования: 5601202309060003
Дата опубликования: 06.09.2023
Страница №50 из 98:
Увеличить