Приказ Инспекции государственной охраны объектов культурного наследия Оренбургской области от 10.08.2023 № 01-08-426
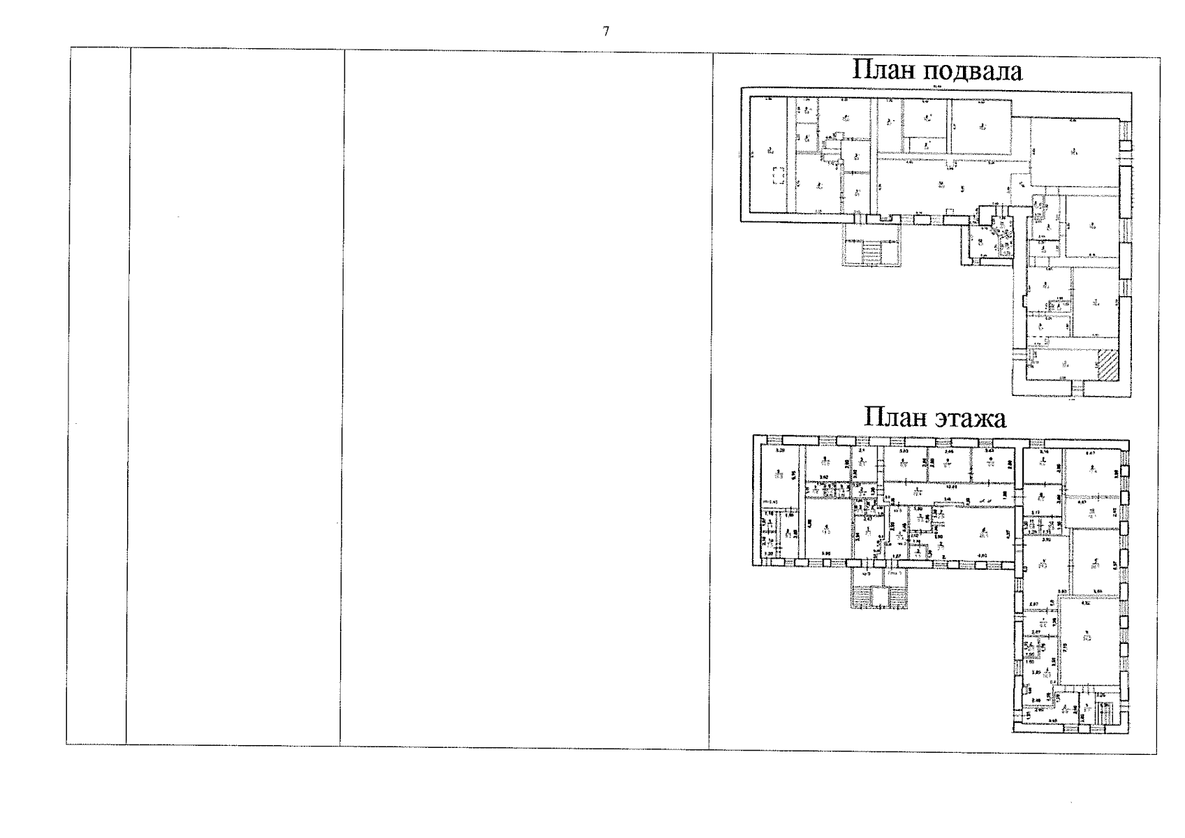
"О включении выявленного объекта культурного наследия в единый государственный реестр объектов культурного наследия (памятников истории и культуры) народов Российской Федерации в качестве объекта культурного наследия регионального значения (вид – ансамбль) "Усадьба купцов Мякиньковых", середина XIX в. – начало XX в. (Оренбургская область, г. Оренбург, ул. Ленинская, 36 / 9-го Января, 30), об утверждении предметов охраны, границ и режима использования территории объекта культурного наследия"
(Зарегистрирован 10.08.2023 № 0272/2023/22)
"О включении выявленного объекта культурного наследия в единый государственный реестр объектов культурного наследия (памятников истории и культуры) народов Российской Федерации в качестве объекта культурного наследия регионального значения (вид – ансамбль) "Усадьба купцов Мякиньковых", середина XIX в. – начало XX в. (Оренбургская область, г. Оренбург, ул. Ленинская, 36 / 9-го Января, 30), об утверждении предметов охраны, границ и режима использования территории объекта культурного наследия"
(Зарегистрирован 10.08.2023 № 0272/2023/22)
Номер опубликования: 5601202308110009
Дата опубликования:
11.08.2023
