Официальное опубликование правовых актов
ОФИЦИАЛЬНОЕ ОПУБЛИКОВАНИЕ
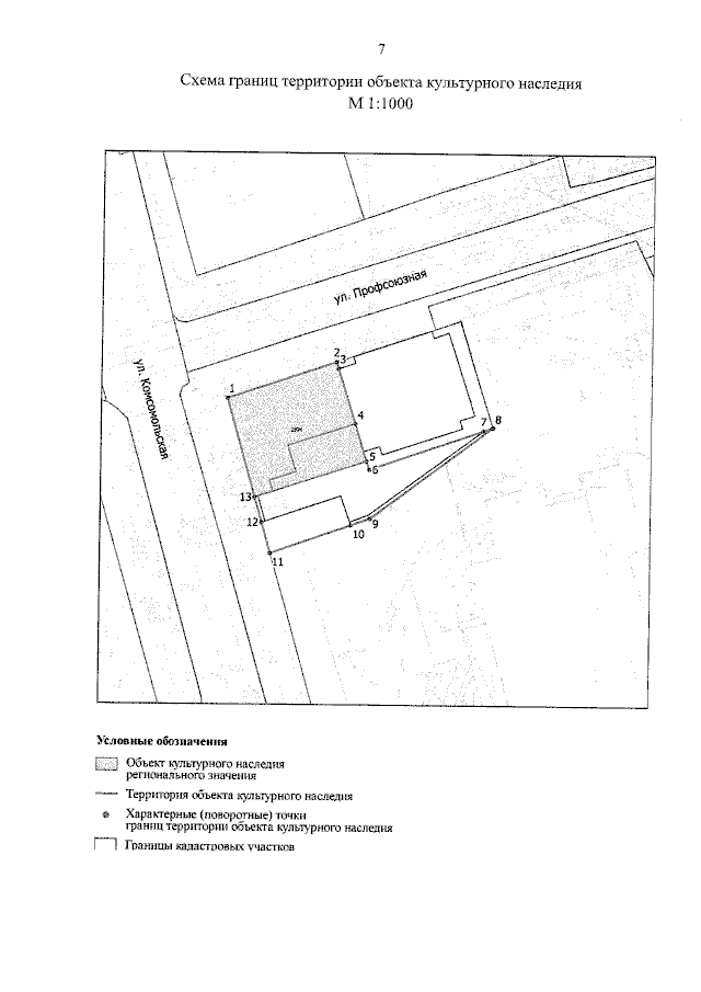
Приказ Инспекции государственной охраны объектов культурного наследия Оренбургской области от 19.07.2023 № 01-08-276
"О включении выявленного объекта культурного наследия в единый государственный реестр объектов культурного наследия (памятников истории и культуры) народов Российской Федерации, об утверждении предмета охраны, границ и режима использования территории объекта культурного наследия"
(Зарегистрирован 19.07.2023 № 0152/2023/22)
Номер опубликования: 5601202307210005
Дата опубликования: 21.07.2023
Страница №7 из 10:
Увеличить