Официальное опубликование правовых актов
ОФИЦИАЛЬНОЕ ОПУБЛИКОВАНИЕ
Постановление Правительства Оренбургской области от 18.12.2015 № 976-пп
"О внесении изменения в постановление Правительства Оренбургской области от 15 мая 2013 года № 378-пп"
Номер опубликования: 5600201512210022
Дата опубликования: 21.12.2015
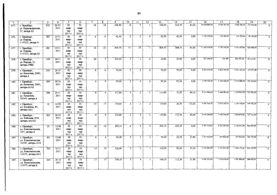
Страница №89 из 166:
Увеличить