Приказ Министерства строительства Новосибирской области от 24.12.2025 № 196-НПА
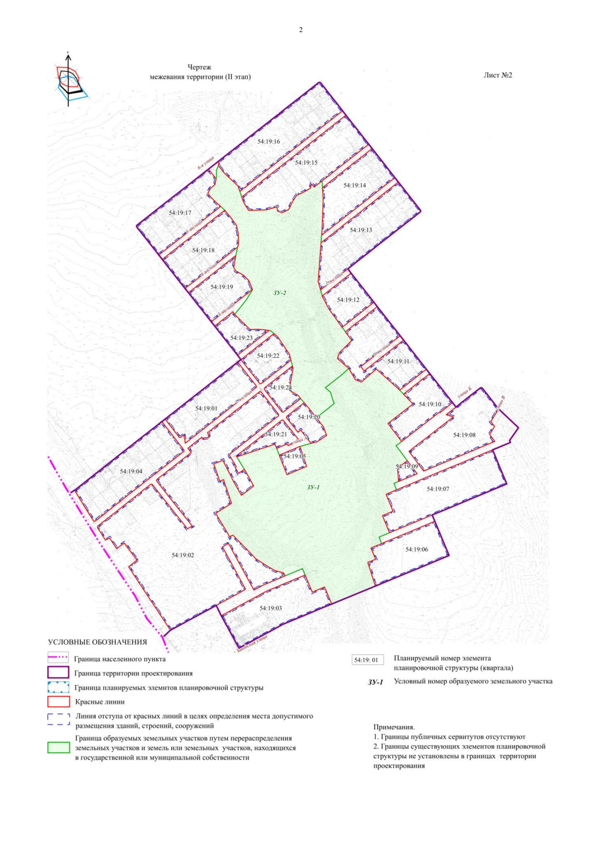
"Об утверждении проекта планировки территории для размещения улично-дорожной сети и спортивного объекта в границах Каменского сельсовета Новосибирского района Новосибирской области и проекта межевания территории в его составе"
(Зарегистрирован 24.12.2025 № 196-НПА)
"Об утверждении проекта планировки территории для размещения улично-дорожной сети и спортивного объекта в границах Каменского сельсовета Новосибирского района Новосибирской области и проекта межевания территории в его составе"
(Зарегистрирован 24.12.2025 № 196-НПА)
Номер опубликования: 5401202512250003
Дата опубликования:
25.12.2025
