Приказ Министерства градостроительной деятельности и развития агломераций Нижегородской области от 04.09.2025 № 07-02-03/81
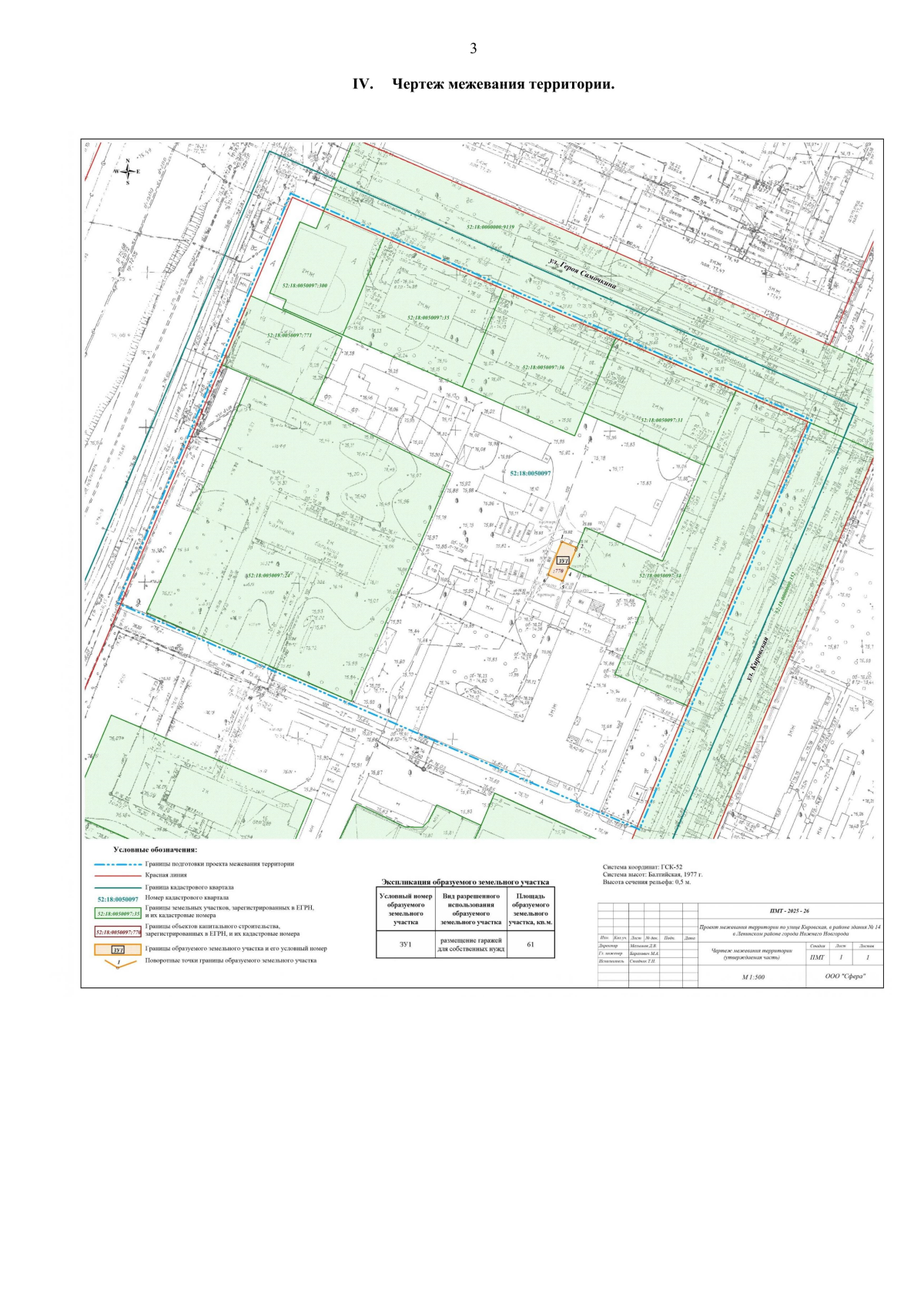
"Об утверждении проекта межевания территории по улице Кировская, в районе здания № 14 в Ленинском районе города Нижнего Новгорода"
(Зарегистрирован 15.09.2025 № 28666-330-007-02-03/81)
"Об утверждении проекта межевания территории по улице Кировская, в районе здания № 14 в Ленинском районе города Нижнего Новгорода"
(Зарегистрирован 15.09.2025 № 28666-330-007-02-03/81)
Номер опубликования: 5201202509170006
Дата опубликования:
17.09.2025
