Официальное опубликование правовых актов
ОФИЦИАЛЬНОЕ ОПУБЛИКОВАНИЕ
Приказ Министерства градостроительной деятельности и развития агломераций Нижегородской области от 29.08.2025 № 07-02-03/77
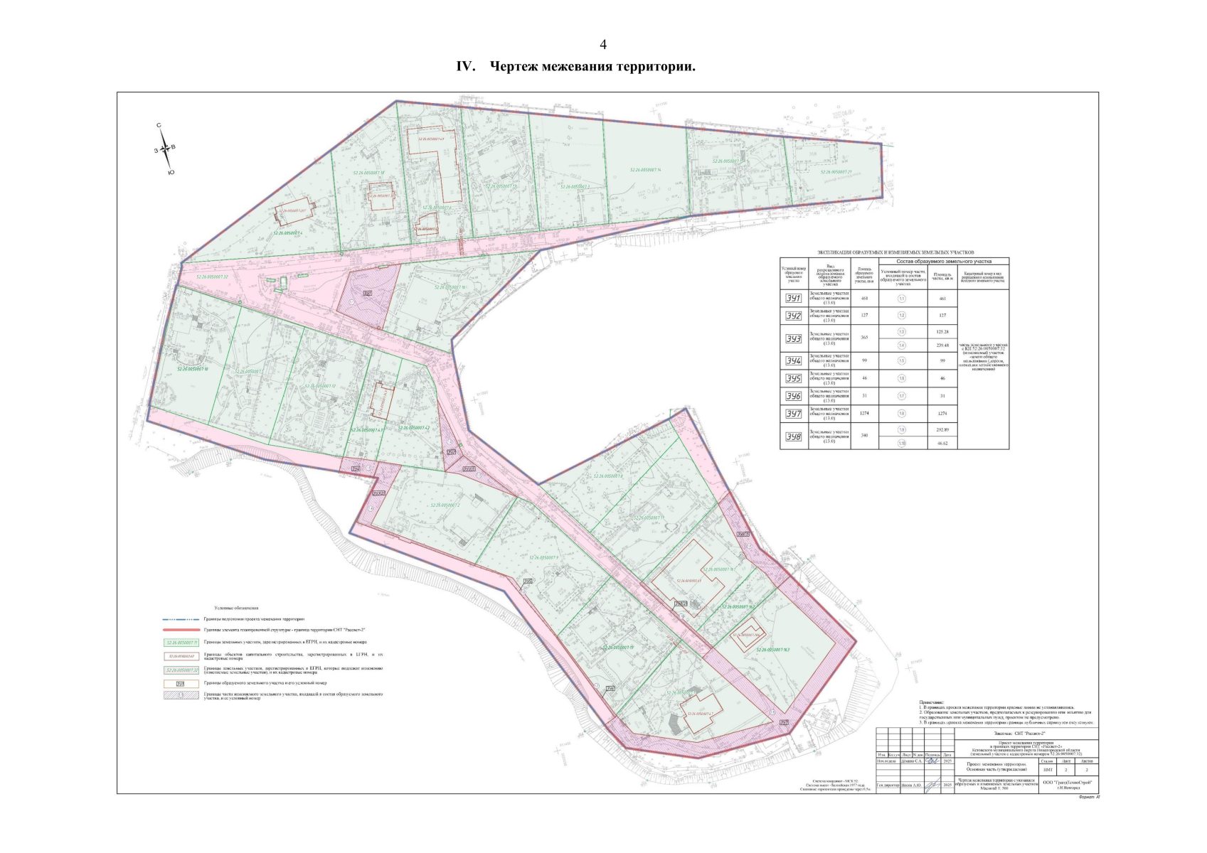
"Об утверждении проекта межевания территории в границах территории СНТ "Рассвет-2" Кстовского района городского округа город Нижний Новгород Нижегородской области"
(Зарегистрирован 08.09.2025 № 28634-330-007-02-03/77)
Номер опубликования: 5201202509100006
Дата опубликования: 10.09.2025
Страница №6 из 7:
Увеличить