Официальное опубликование правовых актов
ОФИЦИАЛЬНОЕ ОПУБЛИКОВАНИЕ
Приказ Министерства градостроительной деятельности и развития агломераций Нижегородской области от 16.06.2025 № 07-02-03/56
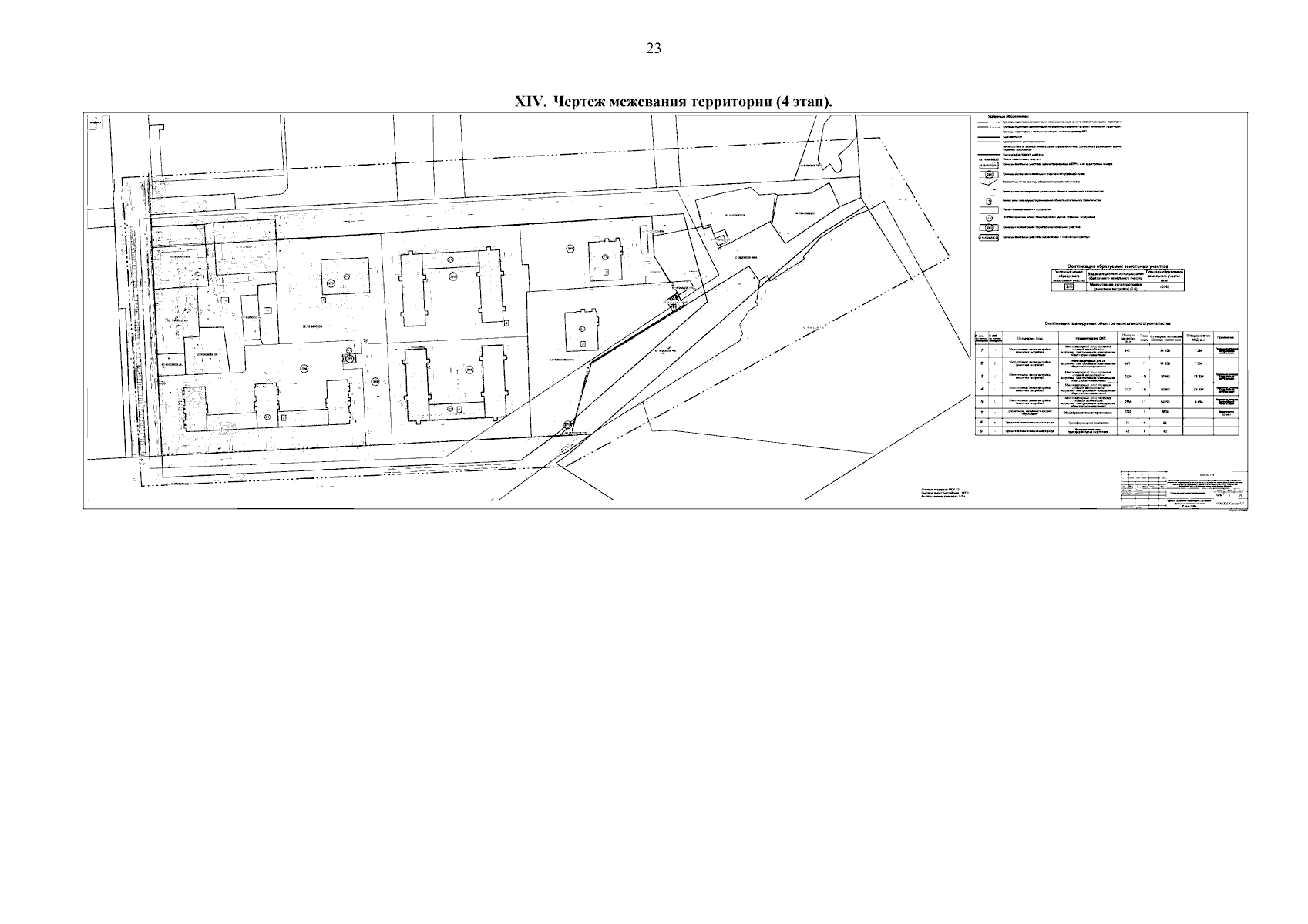
"Об утверждении документации по внесению изменений в проект планировки территории в границах улиц Крановая, Актюбинская, Фибролитовая, Комсомольское шоссе в Канавинском районе города Нижнего Новгорода и проект межевания территории в границах улиц Актюбинская, Фибролитовая, Крановая в Канавинском районе города Нижнего Новгорода"
(Зарегистрирован 07.07.2025 № 28388-330-007-02-03/56)
Номер опубликования: 5201202507090006
Дата опубликования: 09.07.2025
Страница №25 из 27:
Увеличить