Официальное опубликование правовых актов
ОФИЦИАЛЬНОЕ ОПУБЛИКОВАНИЕ
Приказ Министерства градостроительной деятельности и развития агломераций Нижегородской области от 06.06.2025 № 07-02-03/55
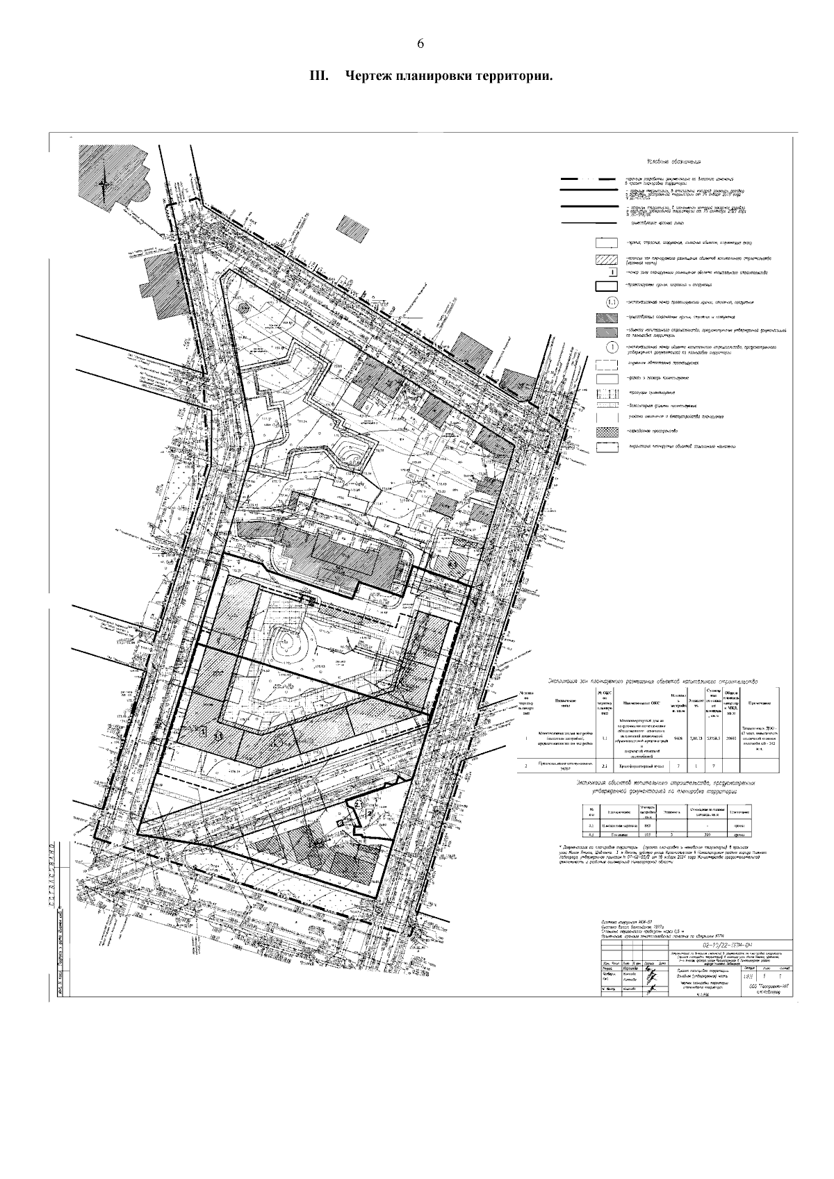
"Об утверждении изменений в документацию по планировке территории (проект планировки и межевания территории) в границах улиц Малая Ямская, Шевченко, 3-я Ямская, дублера улицы Красносельская в Нижегородском районе города Нижнего Новгорода"
(Зарегистрирован 19.06.2025 № 28306-330-007-02-03/55)
Номер опубликования: 5201202506200006
Дата опубликования: 20.06.2025
Страница №8 из 8:
Увеличить