Приказ Министерства градостроительной деятельности и развития агломераций Нижегородской области от 24.04.2025 № 07-02-03/46
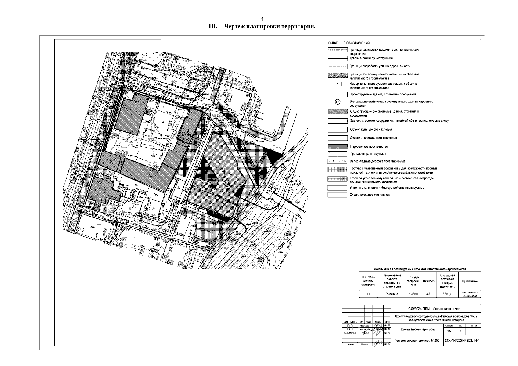
"Об утверждении проекта планировки территории по улице Ильинская, в районе дома № 56 в Нижегородском районе города Нижнего Новгорода"
(Зарегистрирован 27.05.2025 № 28158-330-007-02-03/46)
"Об утверждении проекта планировки территории по улице Ильинская, в районе дома № 56 в Нижегородском районе города Нижнего Новгорода"
(Зарегистрирован 27.05.2025 № 28158-330-007-02-03/46)
Номер опубликования: 5201202505290003
Дата опубликования:
29.05.2025
