Официальное опубликование правовых актов
ОФИЦИАЛЬНОЕ ОПУБЛИКОВАНИЕ
Приказ Министерства градостроительной деятельности и развития агломераций Нижегородской области от 18.04.2025 № 07-02-03/44
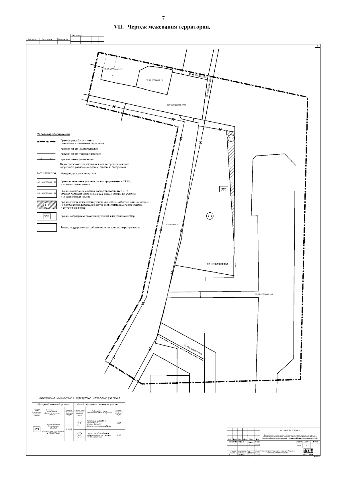
"Об утверждении документации по внесению изменений в проект планировки и межевания территории в границах улиц Июльских дней, Приокская, реки Ока, улицы Октябрьской Революции, площади Комсомольская в Канавинском и Ленинском районах города Нижнего Новгорода"
(Зарегистрирован 27.05.2025 № 28156-330-007-02-03/44)
Номер опубликования: 5201202505290001
Дата опубликования: 29.05.2025
Страница №9 из 10:
Увеличить