Официальное опубликование правовых актов
ОФИЦИАЛЬНОЕ ОПУБЛИКОВАНИЕ
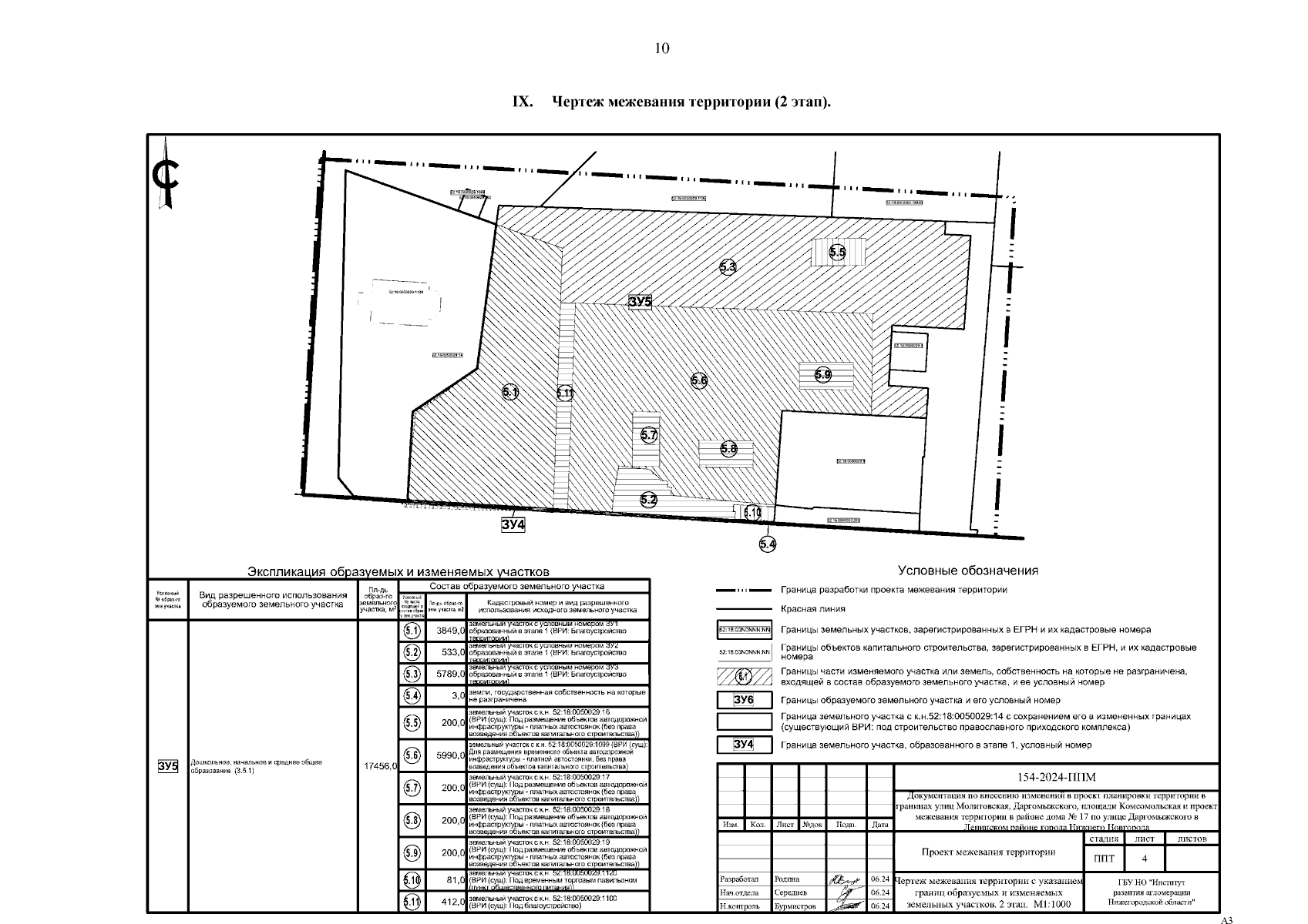
Приказ Министерства градостроительной деятельности и развития агломераций Нижегородской области от 17.03.2025 № 07-02-03/29
"Об утверждении документации по внесению изменений в проект планировки территории в границах улиц Молитовская, Даргомыжского, площади Комсомольская и проект межевания территории в районе дома № 17 по улице Даргомыжского в Ленинском районе города Нижнего Новгорода"
(Зарегистрирован 14.04.2025 № 27963-330-007-02-03/29)
Номер опубликования: 5201202504170006
Дата опубликования: 17.04.2025
Страница №12 из 13:
Увеличить