Официальное опубликование правовых актов
ОФИЦИАЛЬНОЕ ОПУБЛИКОВАНИЕ
Приказ Министерства градостроительной деятельности и развития агломераций Нижегородской области от 10.03.2025 № 07-02-03/25
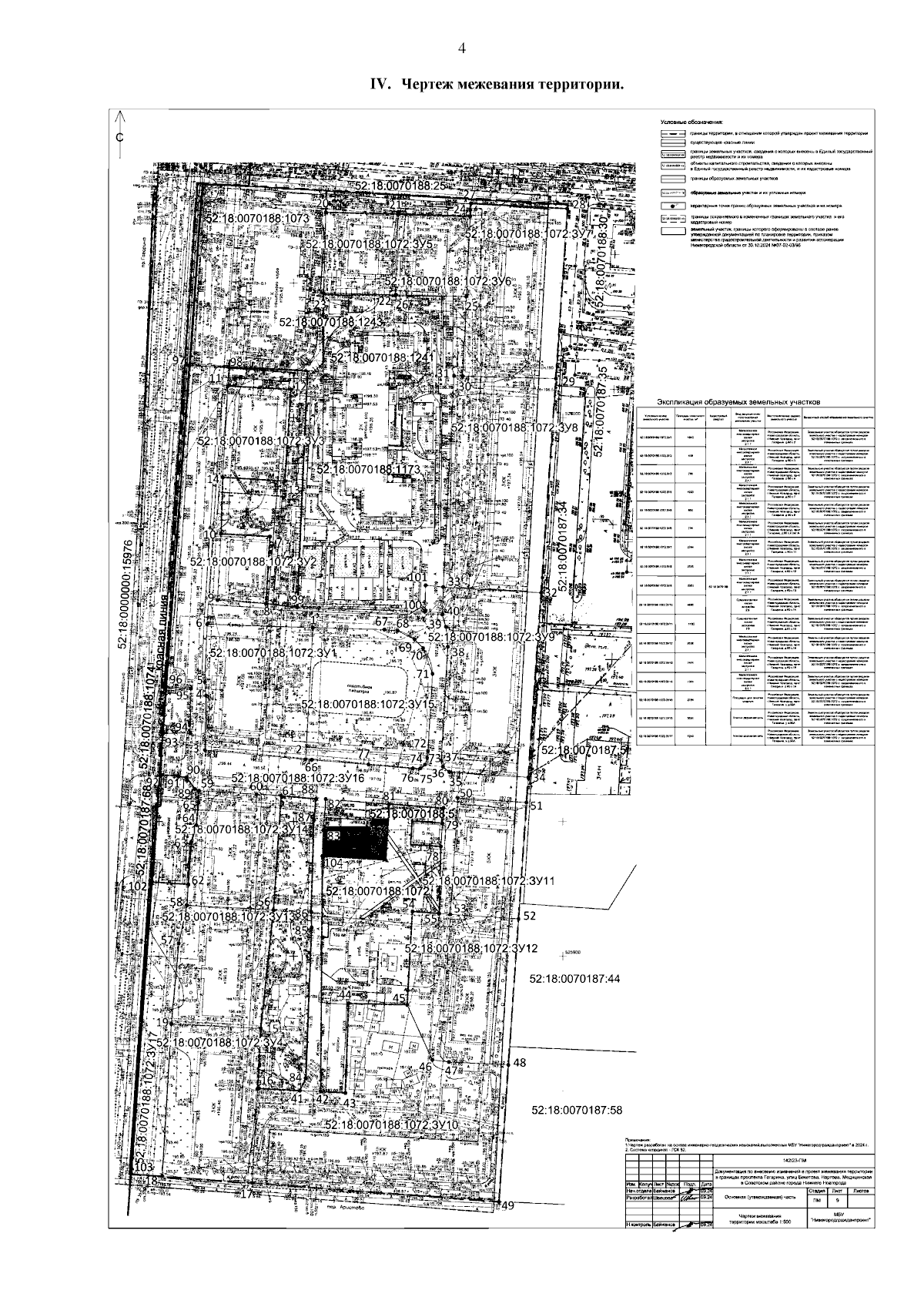
"Об утверждении документации по внесению изменений в проект межевания территории в границах проспекта Гагарина, улиц Бекетова, Нартова, Медицинская в Советском районе города Нижнего Новгорода"
(Зарегистрирован 27.03.2025 № 27865-330-007-02-03/25)
Номер опубликования: 5201202503280003
Дата опубликования: 28.03.2025
Страница №6 из 6:
Увеличить