Официальное опубликование правовых актов
ОФИЦИАЛЬНОЕ ОПУБЛИКОВАНИЕ
Приказ Министерства градостроительной деятельности и развития агломераций Нижегородской области от 06.03.2025 № 07-02-03/23
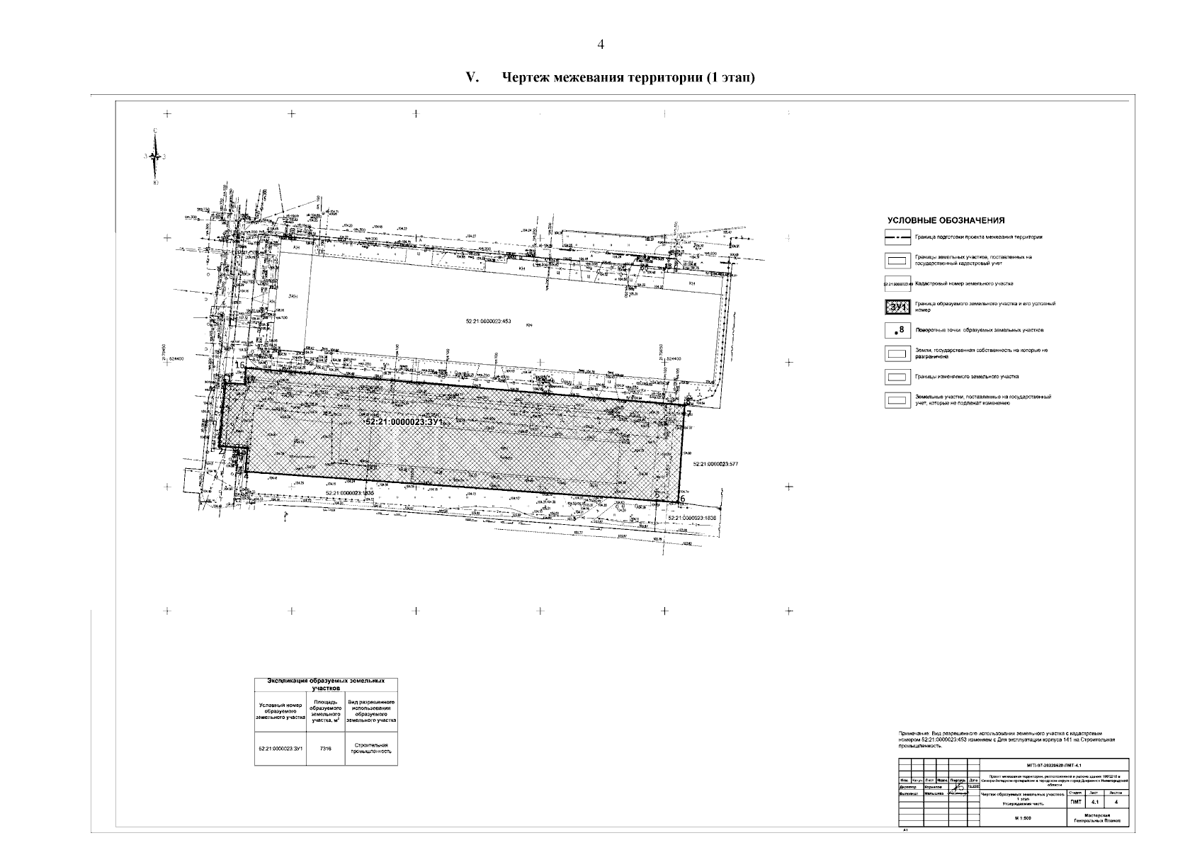
"Об утверждении проекта межевания территории, расположенной в районе здания 105/2215 в Северо-Западном промрайоне в городском округе город Дзержинск Нижегородской области"
(Зарегистрирован 24.03.2025 № 27845-330-007-02-03/23)
Номер опубликования: 5201202503270003
Дата опубликования: 27.03.2025
Страница №6 из 8:
Увеличить