Официальное опубликование правовых актов
ОФИЦИАЛЬНОЕ ОПУБЛИКОВАНИЕ
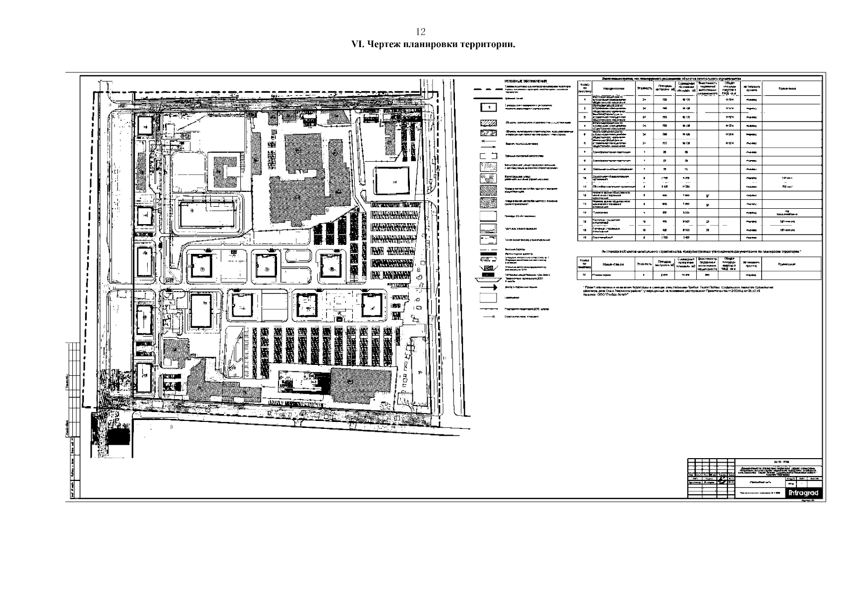
Приказ Министерства градостроительной деятельности и развития агломераций Нижегородской области от 14.02.2025 № 07-02-03/13
"Об утверждении документации по планировке территории (проекта планировки территории, включая проект межевания территории) в границах улиц Шекспира, Героя Попова, Суздальская в Ленинском районе г. Нижнего Новгорода"
(Зарегистрирован 17.03.2025 № 27800-330-007-02-03/13)
Номер опубликования: 5201202503190003
Дата опубликования: 19.03.2025
Страница №14 из 16:
Увеличить