Приказ Министерства градостроительной деятельности и развития агломераций Нижегородской области от 31.01.2025 № 07-02-03/7
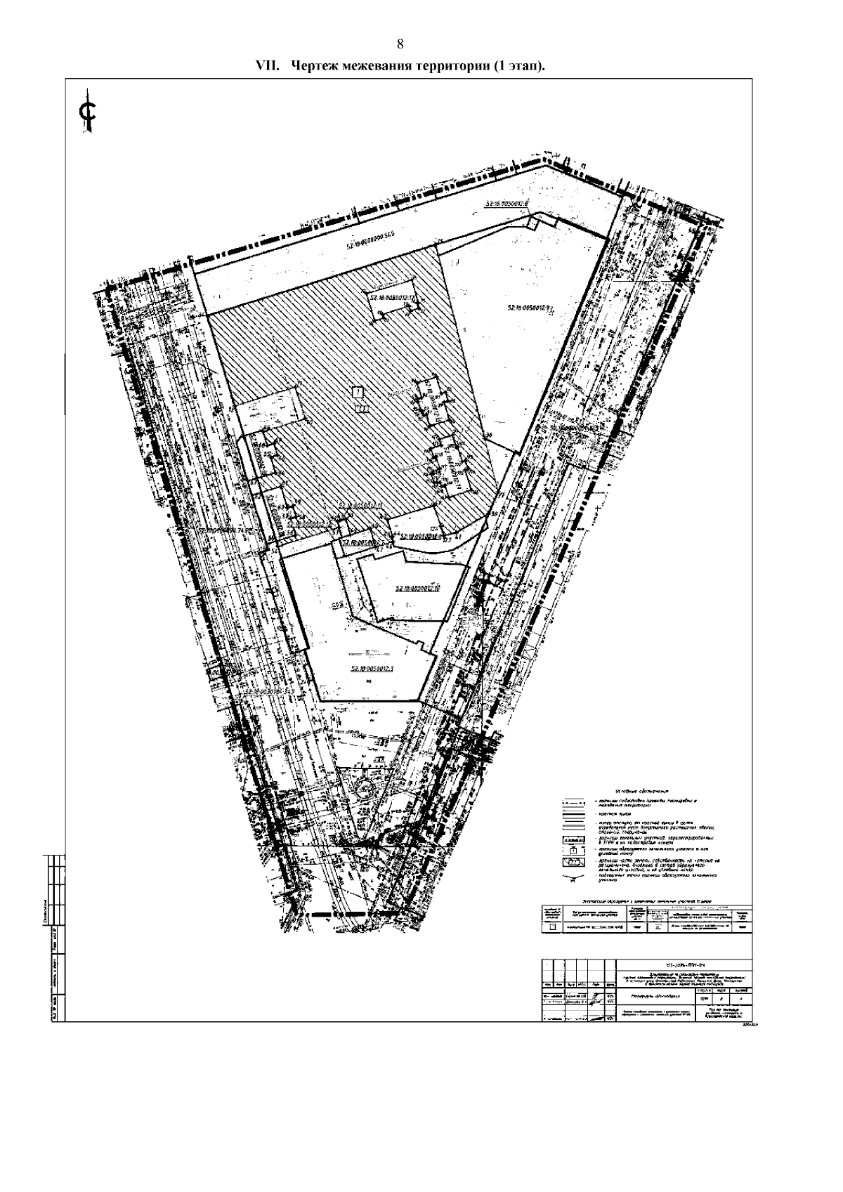
"Об утверждении документации по планировке территории (проекта планировки территории, включая проект межевания территории) в границах улиц Октябрьской Революции, Июльских Дней, Чонгарская в Ленинском районе города Нижнего Новгорода"
(Зарегистрирован 17.02.2025 № 27628-330-007-02-03/7)
"Об утверждении документации по планировке территории (проекта планировки территории, включая проект межевания территории) в границах улиц Октябрьской Революции, Июльских Дней, Чонгарская в Ленинском районе города Нижнего Новгорода"
(Зарегистрирован 17.02.2025 № 27628-330-007-02-03/7)
Номер опубликования: 5201202502190012
Дата опубликования:
19.02.2025
