Официальное опубликование правовых актов
ОФИЦИАЛЬНОЕ ОПУБЛИКОВАНИЕ
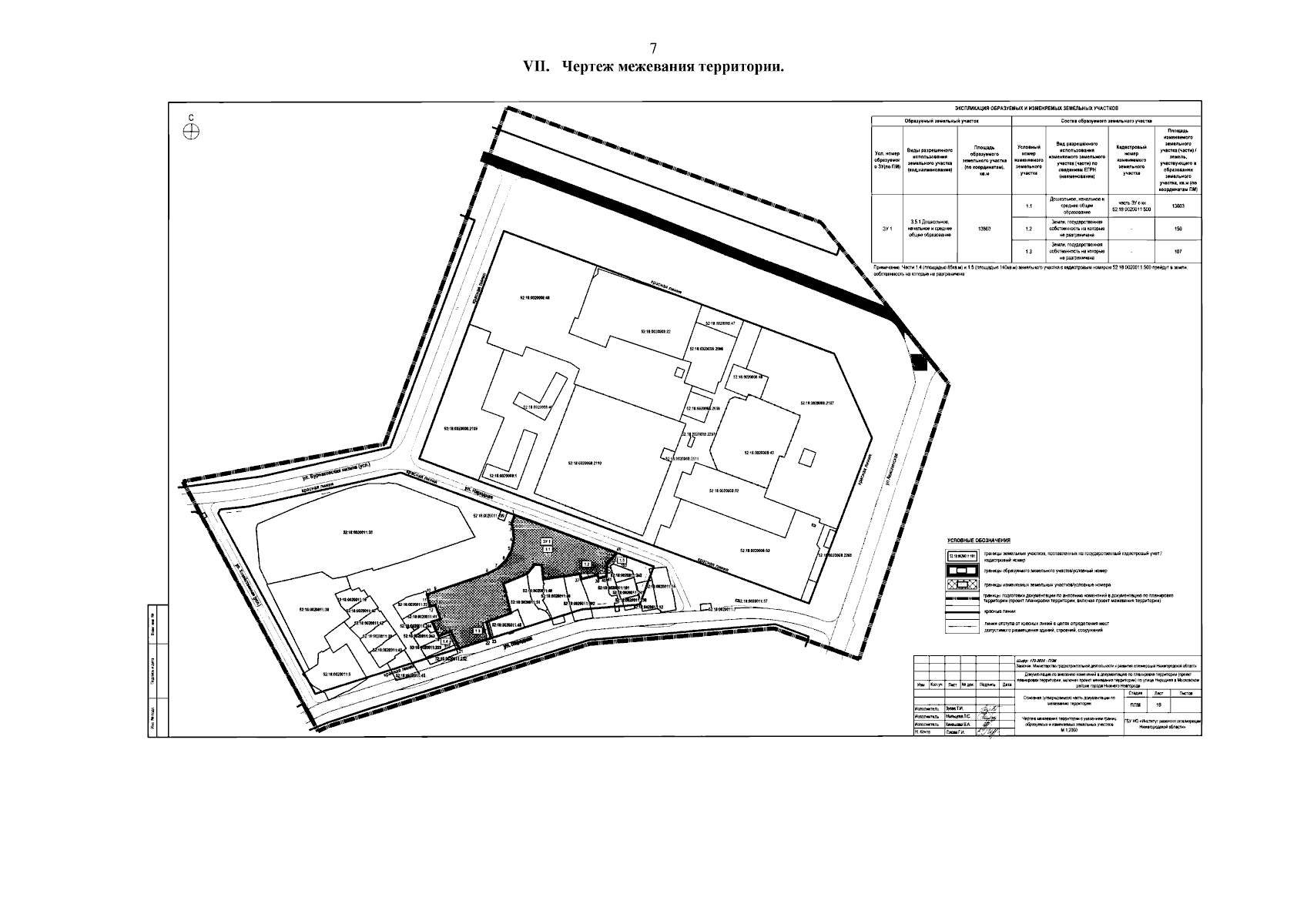
Приказ Министерства градостроительной деятельности и развития агломераций Нижегородской области от 07.02.2025 № 07-02-03/8
"Об утверждении документации по внесению изменений в документацию по планировке территории (проект планировки территории, включая проект межевания территории) по улице Народная в Московском районе города Нижнего Новгорода"
(Зарегистрирован 17.02.2025 № 27629-330-007-02-03/8)
Номер опубликования: 5201202502190011
Дата опубликования: 19.02.2025
Страница №9 из 10:
Увеличить