Приказ Министерства градостроительной деятельности и развития агломераций Нижегородской области от 24.12.2024 № 07-02-03/116
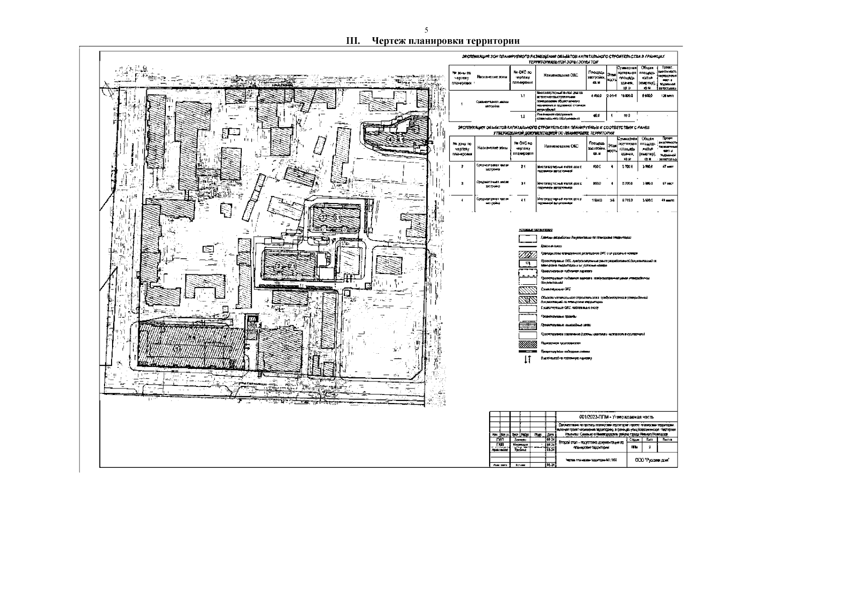
"Об утверждении документации по планировке территории (проекта планировки территории, включая проект межевания территории) в границах улиц Ковалихинская, Нестерова, Ульянова, Семашко в Нижегородском районе города Нижнего Новгорода"
(Зарегистрирован 05.02.2025 № 27550-330-007-02-03/116)
"Об утверждении документации по планировке территории (проекта планировки территории, включая проект межевания территории) в границах улиц Ковалихинская, Нестерова, Ульянова, Семашко в Нижегородском районе города Нижнего Новгорода"
(Зарегистрирован 05.02.2025 № 27550-330-007-02-03/116)
Номер опубликования: 5201202502070006
Дата опубликования:
07.02.2025
