Официальное опубликование правовых актов
ОФИЦИАЛЬНОЕ ОПУБЛИКОВАНИЕ
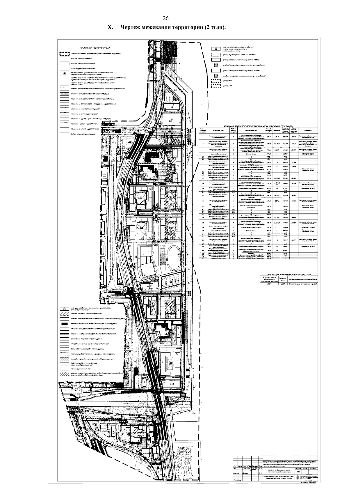
Приказ Министерства градостроительной деятельности и развития агломераций Нижегородской области от 24.12.2024 № 07-02-03/117
"Об утверждении документации по планировке территории (проекта планировки территории, включая проект межевания территории) в границах улицы Приокская, реки Ока, улиц Молитовская, Фабричная, Интернациональная в Канавинском и Ленинском районах города Нижнего Новгорода"
(Зарегистрирован 05.02.2025 № 27551-330-007-02-03/117)
Номер опубликования: 5201202502070005
Дата опубликования: 07.02.2025
Страница №28 из 28:
Увеличить