Официальное опубликование правовых актов
ОФИЦИАЛЬНОЕ ОПУБЛИКОВАНИЕ
Приказ Министерства градостроительной деятельности и развития агломераций Нижегородской области от 11.12.2024 № 07-02-03/112
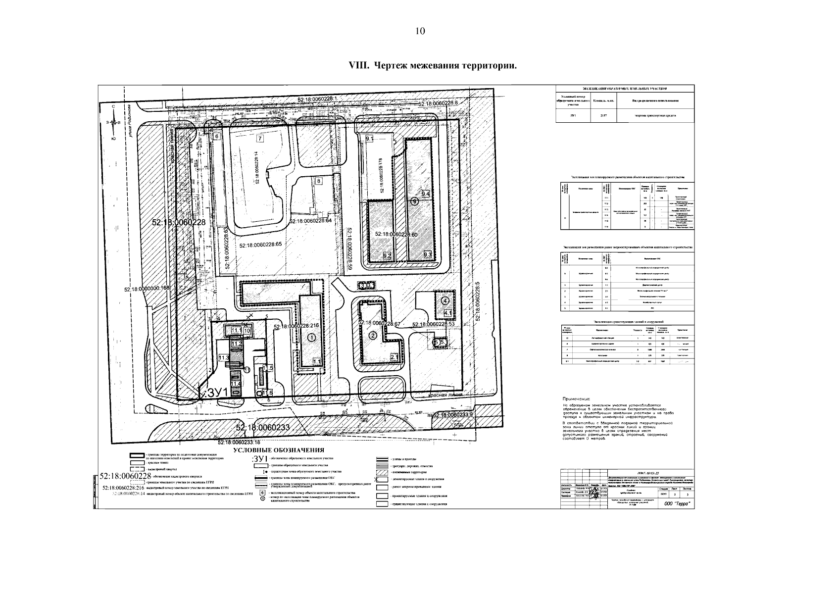
"Об утверждении документации по внесению изменений в проект планировки и межевания территории в границах улиц Родионова, Казанский съезд, Лысогорская, включая полуостров Печерские пески в Нижегородском районе города Нижнего Новгорода"
(Зарегистрирован 20.01.2025 № 27439-330-007-02-03/112)
Номер опубликования: 5201202501230012
Дата опубликования: 23.01.2025
Страница №12 из 12:
Увеличить