Официальное опубликование правовых актов
ОФИЦИАЛЬНОЕ ОПУБЛИКОВАНИЕ
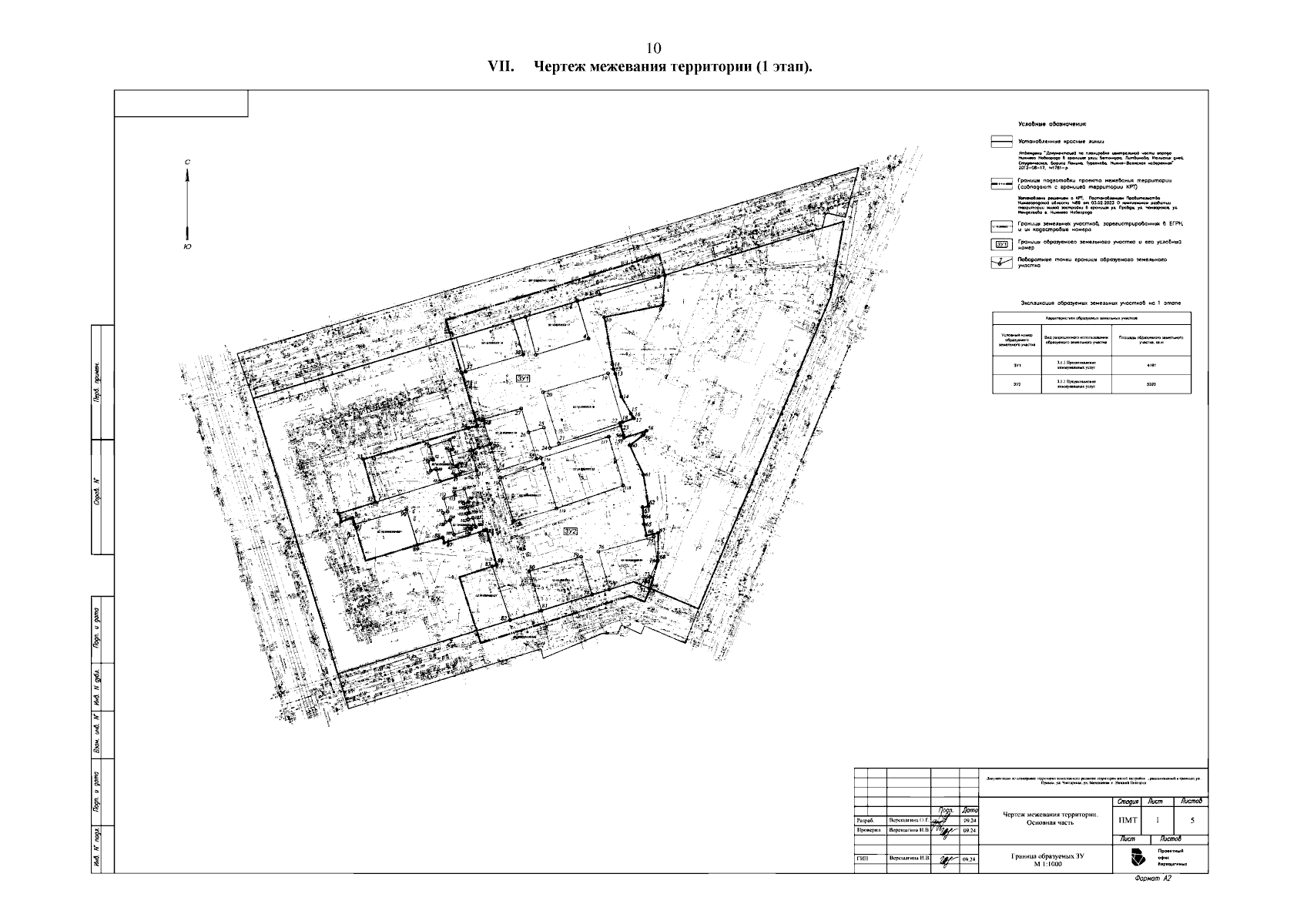
Приказ Министерства градостроительной деятельности и развития агломераций Нижегородской области от 26.11.2024 № 07-02-03/104
"Об утверждении документации по планировке территории комплексного развития территории жилой застройки, расположенной в границах ул. Правды, ул. Чонгарская, ул. Менделеева в Ленинском районе города Нижнего Новгорода"
(Зарегистрирован 12.12.2024 № 26949-330-007-02-03/104)
Номер опубликования: 5201202412130008
Дата опубликования: 13.12.2024
Страница №12 из 16:
Увеличить