Официальное опубликование правовых актов
ОФИЦИАЛЬНОЕ ОПУБЛИКОВАНИЕ
Приказ Министерства градостроительной деятельности и развития агломераций Нижегородской области от 07.10.2024 № 07-02-03/84
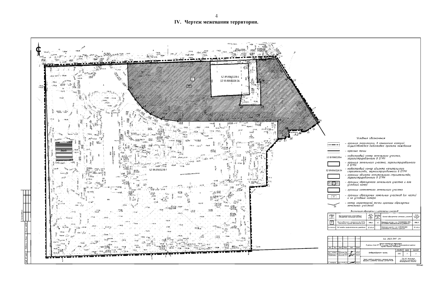
"Об утверждении проекта межевания территории в районе дома № 194 по улице Родионова в Нижегородском районе города Нижнего Новгорода"
(Зарегистрирован 05.11.2024 № 26590-330-007-02-03/84)
Номер опубликования: 5201202411070004
Дата опубликования: 07.11.2024
Страница №6 из 6:
Увеличить