Официальное опубликование правовых актов
ОФИЦИАЛЬНОЕ ОПУБЛИКОВАНИЕ
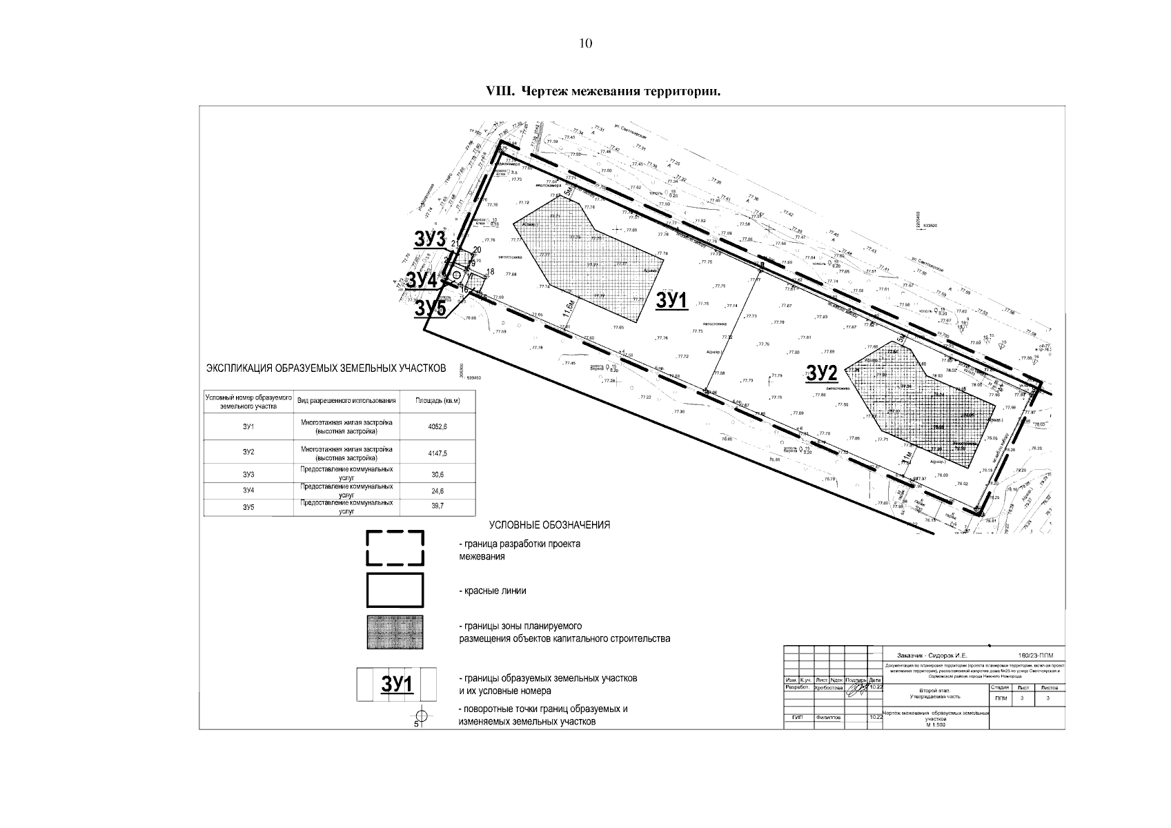
Приказ Министерства градостроительной деятельности и развития агломераций Нижегородской области от 03.10.2024 № 07-02-03/83
"Об утверждении документации по планировке территории (проекта планировки территории, включая проект межевания территории), расположенной напротив дома № 25 по улице Светлоярская в Сормовском районе города Нижнего Новгорода"
(Зарегистрирован 05.11.2024 № 26589-330-007-02-03/83)
Номер опубликования: 5201202411070001
Дата опубликования: 07.11.2024
Страница №12 из 12:
Увеличить