Официальное опубликование правовых актов
ОФИЦИАЛЬНОЕ ОПУБЛИКОВАНИЕ
Приказ Министерства градостроительной деятельности и развития агломераций Нижегородской области от 15.08.2024 № 07-02-03/69
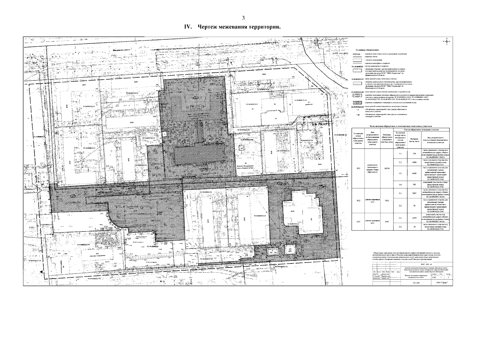
"Об утверждении проекта межевания территории в границах Московское шоссе, Комсомольское шоссе, улицы Аэродромная, переулка Шланговый в Канавинском районе города Нижнего Новгорода"
(Зарегистрирован 02.09.2024 № 26248-330-007-02-03/69)
Номер опубликования: 5201202409050010
Дата опубликования: 05.09.2024
Страница №5 из 6:
Увеличить